Maison neuve à
Gavrus
(14210) Référence :
JS2390959_3
Prix du projet : Maison avec Terrain
prix 215 600 €
- 5 pièces
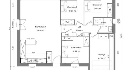
- 3 chambres
- Surface maison 85 m2
Noyers-Bocage : maison de 5 pièces (85 m²) en vente
Idéalement située - Maison neuve 5 pièces en vente à Noyers-Bocage (14210) avec une surface de 85 m² et de 434 m² de terrain. Elle offre trois chambres, une cuisine et une salle de bains.
Proche gare (Bretteville-Norrey), École Primaire Noyers Bocage, bibliothèque, boulangerie, épicerie et boucherie-charcuterie. Accès autoroute A84 à 1 km.
Cette maison de 5 pièces est à vendre pour la somme de 215 600 €.
Prenez contact avec Emilie HUE (06-29-81-46-66) pour tout renseignement sur la maison de plain-pied ou sur les démarches à suivre. Donnez vie à vos projets immobiliers avec Maisons France Confort Bayeux.
Annonce proposée par un Agent Commercial Partenaire.
Mentions légales
Terrain proposé par un partenaire foncier selon disponibilités et autorisation de publicité au prix de 70 600 €. Hors droit d'enregistrement et frais de notaire. Terrain + Maison proposés au prix de 215 600 € (Hors branchements et raccordements, papiers peints, peintures, revêtement de sol dans les chambres. Tarif modifiable sans préavis). Etiquette énergie : A. Différents modèles disponibles pour ce terrain. Assurances et garanties du constructeur (RC professionnelle, décennale, dommage ouvrage, garantie de remboursement de l'acompte, livraison à prix et délai convenu) : https://www.maisons-france-confort.fr/mentions-legales/. HEXAOM Services est enregistré auprès de l'ORIAS en tant que Courtier en financement, Niveau 1, sous le numéro 14001345.Agence Maisons France Confort de Bayeux (14400)
- Téléphone :
- 02 31 51 20 91
- Adressse :
- 2, rue Saint Loup
14400 Bayeux, France
