Maison neuve à
Générac (33920) Référence : IN2447153_11

Prix du projet : Maison avec Terrain

prix 203 000 €

  • 6 pièces
  • 3 chambres
  • Surface maison 100 m2

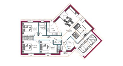
Générac - Maison neuve de 100 m² (6 pièces)
MAISON 6 PIÈCES NEUVE
À Générac (33920), notre agence Maisons de la Côte Atlantique Blaye est heureuse de vous présenter cette maison neuve de plain-pied de 100 m², composée de six pièces et implantée sur un terrain de 700 m².
Elle comprend trois chambres, une cuisine et une salle de bains, offrant un agencement fonctionnel et adapté à la vie familiale. La maison est entièrement neuve.
Une école élémentaire est implantée dans le quartier, et l'accès à l'autoroute A10 se situe à seulement 8 km, facilitant les déplacements.
Cette maison est proposée au prix de 203 000 €.

Mentions légales

Idée de réalisation en modèle prêt à décorer sur l'un de nos terrains partenaires, sous réserve de disponibilités. Voir détails en agence.

Contactez l'agence de Blaye

05 57 32 87 63

    * Champs obligatoires

    Vos informations sont traitées par HEXAOM et transmises à un conseiller commercial qui vous contactera afin de répondre à votre demande. Les plans et images présentés sur notre site sont la propriété d’HEXAOM et ne peuvent pas être reproduits sans son accord. Pour retrouver notre politique de protection des données personnelles et exercer vos droits conformément à la « loi informatique et liberté » cliquez-ici.