Maison neuve à
Geneston
(44140) Référence :
TD2335616_4
Prix du projet : Maison avec Terrain
prix 362 000 €
- 6 pièces
- 5 chambres
- Surface maison 120 m2
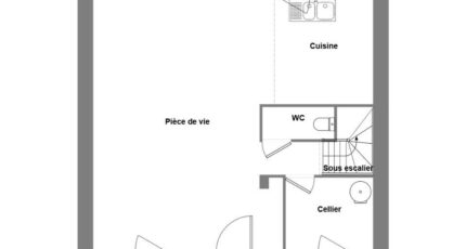
VENTE d'une maison T6 (120 m²) à Geneston
PROCHE DE NANTES - MAISON 6 PIÈCES NEUVE
À vendre à 30 km de l'océan Atlantique et à 20 km de Nantes, Maisons de l'Avenir Rezé vous propose cette maison de 6 pièces de 120 m² à Geneston (44140).
Cette maison possède 2 niveaux. Elle propose cinq chambres, une cuisine et deux salles de bains.
Elle est proposée à l'achat pour 362 000 €.
Contactez notre agence (Thibault DUPONT : 02-40-26-28-28) pour plus de renseignements sur cette maison. Maisons de l'Avenir Rezé est là pour vous accompagner dans tous vos projets immobiliers.
Mentions légales
Maisons de l’Avenir, constructeur de maisons individuelles, propose en collaboration avec ses partenaires fonciers, une sélection de terrains constructibles, selon disponibilité, pour la construction de maisons neuves définies par le constructeur, avec un contrat de construction de maison individuelle, dans le cadre de la loi du 19/12/1990. Prix net, hors frais notariés, d'enregistrement et de publicité foncière
Terrain proposé au prix de : 83 000 €
Maison proposée au prix de : 279 000 €
Etiquette énergie : A. Assurances et garanties du constructeur (RC professionnelle, décennale, dommage ouvrage, Garantie de livraison à prix et délai convenu). https://www.maisonsdelavenir.com/mentions-legales/
Agence Maisons de l'Avenir de Rezé (44400)
- Téléphone :
- 02 40 26 28 28
- Adressse :
- 56, rue de la butte de Praud
44400 Rezé, France
