Maison neuve à
Génissac
(33420) Référence :
DL2471846_3
Prix du projet : Maison avec Terrain
prix 284 020 €
- 4 pièces
- 2 chambres
- Surface maison 90 m2
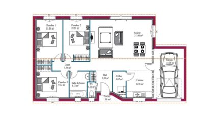
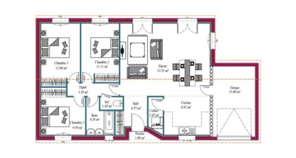
Génissac : maison F4 (90 m²) à vendre
EMPLACEMENT PRIVILÉGIÉ - MAISON 4 PIÈCES NEUVE
En vente : située à 31 km de l'océan Atlantique et à deux pas de Bordeaux, nous vous présentons cette maison de 4 pièces de plain-pied de 90 m² et de 1 103 m² de terrain bénéficiant d'un emplacement privilégié dans Génissac (33420). Elle inclut deux chambres, une cuisine et une salle de bains.
La maison est neuve.
La maison se situe dans un quartier attractif. L'École Primaire Bourg se trouve à moins de 10 minutes à pied. Côté transports, il y a les gares Vayres, Libourne et Saint-Émilion à moins de 10 minutes en voiture. On trouve un accès à la nationale N89 à 5 km. On trouve un tennis, une bibliothèque et un supermarché dans les environs.
Elle est proposée à l'achat pour 284 020 €.
Contactez notre agence (LOPES David : O6-5O-88-58-8O) pour toute question sur la maison, sur les démarches à suivre ou sur les modalités de vente. Maisons de la Côte Atlantique Libourne est là pour vous accompagner dans tous vos projets immobiliers.
Mentions légales
Idée de réalisation en modèle prêt à décorer sur l'un de nos terrains partenaires, sous réserve de disponibilités. Voir détails en agence.Agence Maisons de la Côte Atlantique de Libourne (33500)
- Téléphone :
- 05 57 48 72 88
- Adressse :
- 99, Avenue du Général de Gaulle
33500 Libourne, France
