Maison neuve à
Genneville (14600) Référence : AL2397523_1

Prix du projet : Maison avec Terrain

prix 241 000 €

  • 6 pièces
  • 4 chambres
  • Surface maison 89 m2

VENTE d'une maison F6 (89 m²) à Genneville
MAISON 6 PIÈCES NEUVE - proche d'Honfleur
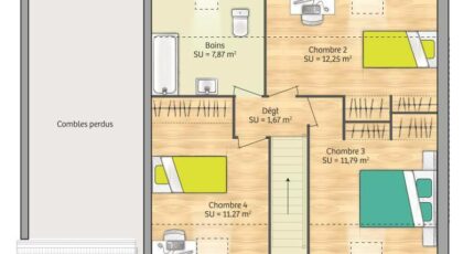
À vendre : située à 7 km de la Manche et à 19 km du Havre, à Genneville (14600), nous vous proposons cette maison de 6 pièces de 89 m² et de 593 m² de terrain. Elle compte quatre chambres, une cuisine et une salle de bains.
Cette maison possède 2 niveaux. Elle est neuve.
Il y a l'École Primaire Rene Lecottier à moins de 10 minutes à pied. Les autoroutes A29 et A13 sont accessibles à moins de 6 km. On trouve une boulangerie à proximité du bien.
Elle est proposée à l'achat pour 241 000 €.
Contactez Aurélien LEMONNIER (06-12-12-45-94) pour obtenir de plus amples renseignements sur la maison ou sur les modalités de vente.

Mentions légales

Terrain proposé par un partenaire foncier selon disponibilités et autorisation de publicité au prix de 69 000 €. Hors droit d'enregistrement et frais de notaire. Terrain + Maison proposés au prix de 241 000 € (Hors branchements et raccordements, papiers peints, peintures, revêtement de sol dans les chambres. Tarif modifiable sans préavis). Etiquette énergie : A. Différents modèles disponibles pour ce terrain. Assurances et garanties du constructeur (RC professionnelle, décennale, dommage ouvrage, garantie de remboursement de l'acompte, livraison à prix et délai convenu) : https://www.maisons-france-confort.fr/mentions-legales/. HEXAOM Services est enregistré auprès de l'ORIAS en tant que Courtier en financement, Niveau 1, sous le numéro 14001345.

Contactez l'agence de Deauville

02 31 87 32 01

    * Champs obligatoires

    Vos informations sont traitées par HEXAOM et transmises à un conseiller commercial qui vous contactera afin de répondre à votre demande. Les plans et images présentés sur notre site sont la propriété d’HEXAOM et ne peuvent pas être reproduits sans son accord. Pour retrouver notre politique de protection des données personnelles et exercer vos droits conformément à la « loi informatique et liberté » cliquez-ici.