Maison neuve à
Genouillé
(17430) Référence :
CR2480979_2
Prix du projet : Maison avec Terrain
prix 325 658 €
- 7 pièces
- 4 chambres
- Surface maison 146 m2
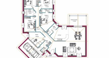
Ce modèle de maison de plain-pied de 145 m² possède de nombreux atouts qui ne vous laisseront pas indifférent.
Tout d'abord des espaces généreux : une pièce de vie (cuisine ouverte/séjour) de plus de 60 m², prolongée par une terrasse couverte de 11 m² pour profiter de l'extérieur dès l'arrivée des beaux jours.
4 belles chambres de 11 à 13 m², dont une suite parentale avec salle d'eau. Toutes les chambres sont équipées de rangements
un grand bureau de 11 m², idéal pour le home office, une salle de jeu pour les enfants ou pour vos activités manuelles.
Cette maison est personnalisable pour s'adapter au mode de vie des grandes familles.
Vous souhaitez revoir l'agencement d'une pièce ? C'est possible car ce modèle est 100% personnalisable !
Mentions légales
Idée de réalisation en modèle prêt à décorer sur l'un de nos terrains partenaires, sous réserve de disponibilités. Voir détails en agence.Agence Maisons de la Côte Atlantique de Rochefort (17300)
- Téléphone :
- 05 46 88 71 67
- Adressse :
- 95 rue des pêcheurs d'Islande
17300 Rochefort, France
