Maison neuve à
Ghyvelde
(59254) Référence :
SH2414737_2
Prix du projet : Maison avec Terrain
prix 250 000 €
- 5 pièces
- 3 chambres
- Surface maison 80 m2
Découvrez cette belle maison R+1 idéalement située sur la commune de Ghyvelde , offrant un cadre de vie confortable et moderne , parfait pour une famille ou un projet de résidence principale .
Au rez-de-chaussée , vous profiterez d'une spacieuse pièce de vie ouverte , lumineuse et conviviale, idéale pour partager de beaux moments en famille ou entre amis .
Un cellier fonctionnel complète l'espace intérieur , ainsi qu'un garage , apportant un confort au quotidien .
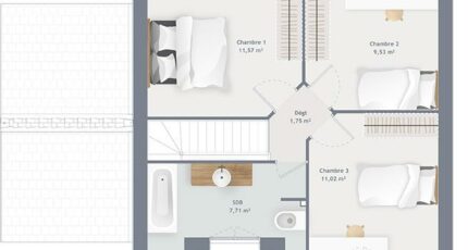
A l'étage , l'espace nuit se compose de trois chambres confortables et d'une salle de bain , offrant parfaitement adapté à la vie de famille .
Elle est proposée à l'achat pour 250000 €.
N'hésitez pas à prendre contact avec notre agence (Séverine Huez : o7-78-16-06-91) pour toute question sur la maison, sur les modalités de vente ou sur les démarches à suivre.
Annonce proposée par un Agent Commercial Partenaire.
Mentions légales
Terrain proposé par un partenaire foncier selon disponibilités et autorisation de publicité au prix de 69 000 €. Hors droit d'enregistrement et frais de notaire. Terrain + Maison proposés au prix de 250 000 € (Hors branchements et raccordements, papiers peints, peintures, revêtement de sol dans les chambres. Tarif modifiable sans préavis). Etiquette énergie : A. Différents modèles disponibles pour ce terrain. Assurances et garanties du constructeur (RC professionnelle, décennale, dommage ouvrage, garantie de remboursement de l'acompte, livraison à prix et délai convenu) : https://www.maisons-france-confort.fr/mentions-legales/. HEXAOM Services est enregistré auprès de l'ORIAS en tant que Courtier en financement, Niveau 1, sous le numéro 14001345.Agence Maisons France Confort de Dunkerque (59140)
- Téléphone :
- 03 28 29 82 40
- Adressse :
- 1 et 3 rue de Bourgogne
59140 Dunkerque, France
