Maison neuve à
Gisors
(27140) Référence :
MD2320812_1
Prix du projet : Maison avec Terrain
prix 200 600 €
- 6 pièces
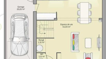
- 4 chambres
- Surface maison 91 m2
Gisors : maison de 6 pièces (91 m²) en vente
EMPLACEMENT PRIVILÉGIÉ - MAISON 6 PIÈCES NEUVE
Proche du Transilien J (1 h de Paris), nous vous présentons en vente, bénéficiant d'un emplacement d'exception dans Gisors (27140), cette maison de 6 pièces de 91 m² et de 590 m² de terrain. Son intérieur comporte quatre chambres, une cuisine et une salle de bains.
Cette maison compte 2 niveaux. Elle est neuve.
La maison se trouve dans un secteur attractif. Des établissements scolaires de tous types sont implantés à moins de 10 minutes à pied. Niveau transports, il y a la gare Gisors dans un rayon de 1 km. On trouve un tennis, une bibliothèque, des commerces, des boulangeries, trois supermarchés, des boucheries-charcuteries et des épiceries à quelques minutes de la maison. Enfin, 2 marchés animent le quartier.
Elle est à vendre pour la somme de 200 600 €.
N'hésitez pas à prendre contact avec Murielle DEBART (tél : 06-29-34-36-28) pour plus d'informations sur la maison, sur les modalités de vente ou sur les démarches à suivre. Maisons France Confort Vernon est là pour vous accompagner dans tous vos projets immobiliers.
Mentions légales
Terrain proposé par un partenaire foncier selon disponibilités et autorisation de publicité au prix de 47 500 €. Hors droit d'enregistrement et frais de notaire. Terrain + Maison proposés au prix de 153 100 € (Hors branchements et raccordements, papiers peints, peintures, revêtement de sol dans les chambres. Tarif modifiable sans préavis). Etiquette énergie : A. Différents modèles disponibles pour ce terrain. Assurances et garanties du constructeur (RC professionnelle, décennale, dommage ouvrage, garantie de remboursement de l'acompte, livraison à prix et délai convenu) : https://www.maisons-france-confort.fr/mentions-legales/. HEXAOM Services est enregistré auprès de l'ORIAS en tant que Courtier en financement, Niveau 1, sous le numéro 14001345.Agence Maisons France Confort de Vernon (27200)
- Téléphone :
- 02 32 51 45 05
- Adressse :
- 38 rue Carnot
27200 Vernon, France
