Maison neuve à
Gisors
(27140) Référence :
MD2320812_2
Prix du projet : Maison avec Terrain
prix 207 800 €
- 6 pièces
- 4 chambres
- Surface maison 91 m2
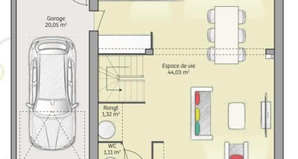
VENTE : maison de 6 pièces (91 m²) à Gisors
EMPLACEMENT PRIVILÉGIÉ - MAISON 6 PIÈCES NEUVE
Proche du Transilien J (1 h de Paris), nous sommes heureux de vous proposer cette maison de 6 pièces de 91 m² et de 590 m² de terrain en vente bénéficiant d'un emplacement privilégié dans Gisors (27140).
C'est une maison de 2 niveaux. Son intérieur se divise en quatre chambres, une cuisine et une salle de bains. Cette maison est neuve.
La maison est située dans un secteur convoité. Des écoles du primaire et du secondaire se trouvent à moins de 10 minutes à pied. Côté transports, il y a la gare Gisors à quelques pas du bien. Il y a un tennis, une bibliothèque, des commerces, des boulangeries, trois supermarchés, des épiceries et des boucheries-charcuteries à proximité. 2 marchés animent le quartier.
Son prix de vente est de 207 800 €.
Prenez contact avec Murielle DEBART (tél : 06-29-34-36-28) pour tout renseignement sur la maison ou sur les modalités de vente.
Mentions légales
Terrain proposé par un partenaire foncier selon disponibilités et autorisation de publicité au prix de 47 500 €. Hors droit d'enregistrement et frais de notaire. Maison proposée, avec un contrat de construction de maison individuelle, dans le cadre de la loi du 19/12/1990, au prix de 160 300 € (Hors branchements et raccordements, papiers peints, peintures, revêtement de sol dans les chambres, qui sont chiffrés dans les travaux qui restent à charge du client. Tarif modifiable sans préavis). Étiquette énergie : A. Différents modèles disponibles pour ce terrain. Assurances et garanties du constructeur comprises (RC professionnelle, décennale, dommage ouvrage).Agence Maisons France Confort de Vernon (27200)
- Téléphone :
- 02 32 51 45 05
- Adressse :
- 38 rue Carnot
27200 Vernon, France
