Maison neuve à
Gisors
(27140) Référence :
FBeragny60_2
Prix du projet : Maison avec Terrain
prix 242 000 €
- 5 pièces
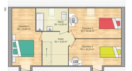
- 3 chambres
- Surface maison 80 m2
Éragny-sur-Epte : maison de 5 pièces (80 m²) à vendre
EMPLACEMENT PRIVILÉGIÉ - MAISON 5 PIÈCES NEUVE
En vente : à côté de la gare de Gisors (Paris à 1 h par le Transilien J), découvrez cette maison de 5 pièces de 80 m² bénéficiant d'un emplacement privilégié dans Éragny-sur-Epte (60590). Son intérieur est composé de trois chambres, d'une cuisine et d'une salle de bains.
Le terrain de la maison s'étend sur 462 m².
C'est une maison de 2 niveaux. Elle est neuve.
Cette propriété est située dans un quartier attractif. L'École Primaire Jean Mermoz se trouve à moins de 10 minutes à pied. Niveau transports en commun, il y a quatre gares à moins de 10 minutes en voiture. On trouve un accès à la nationale N31 à 19 km et Beauvais se situe à 26 km. On trouve un tennis et une bibliothèque dans les environs.
Elle est à vendre pour la somme de 242 000 €.
Prenez contact avec Fabrice BONELLO (tél : 06-09-50-50-09) pour plus d'informations sur la maison ou sur les modalités de vente. Maisons France Confort Beauvais vous accompagne à toutes les étapes de votre projet et dans toutes vos démarches.
Mentions légales
Terrain proposé par un partenaire foncier selon disponibilités et autorisation de publicité au prix de 68 000 €. Hors droit d'enregistrement et frais de notaire. Terrain + Maison proposés au prix de 242 000 € (Hors branchements et raccordements, papiers peints, peintures, revêtement de sol dans les chambres. Tarif modifiable sans préavis). Etiquette énergie : A. Différents modèles disponibles pour ce terrain. Assurances et garanties du constructeur (RC professionnelle, décennale, dommage ouvrage, garantie de remboursement de l'acompte, livraison à prix et délai convenu) : https://www.maisons-france-confort.fr/mentions-legales/. HEXAOM Services est enregistré auprès de l'ORIAS en tant que Courtier en financement, Niveau 1, sous le numéro 14001345.Agence Maisons France Confort de Beauvais (60000)
- Téléphone :
- 03 44 04 40 04
- Adressse :
- 42 rue Pierre Jacoby
60000 Beauvais, France
