Maison neuve à
Givrand
(85800) Référence :
NR2245253_5
Prix du projet : Maison avec Terrain
prix 173 900 €
- 2 pièces
- 2 chambres
- Surface maison 61 m2
*********A SEULEMENT 5 MINUTES DES COMMERCES DE SAINT GILLES CROIX DE VIE**********
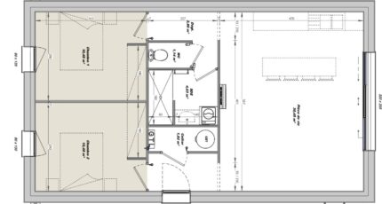
VENTE d'une maison T2 (61 m²) à Givrand
EMPLACEMENT PRIVILÉGIÉ - MAISON 2 PIÈCES NEUVE
À vendre : sur le littoral atlantique, bénéficiant d'un emplacement privilégié dans Givrand (85800), nous sommes ravis de vous présenter cette maison de 2 pièces de plain-pied de 61 m².
Conçue de plain-pied, elle offre deux chambres, une cuisine et une salle de bains. La maison est neuve.
Le terrain du bien est de 279 m².
Cette maison se situe dans un quartier convoité. L'École Primaire Privée la Fontaine se trouve à moins de 10 minutes à pied. Côté transports en commun, il y a deux gares (Saint-Gilles-Croix-de-Vie et Saint-Hilaire-de-Riez) à moins de 10 minutes en voiture. On trouve une boulangerie et un commerce à proximité de la maison.
Elle est à vendre pour la somme de 173 900 €.
Contactez Nicolas RISSELIN (tél : 06-80-33-03-82) pour toute information sur la maison. LMP Constructeur Saint-Gilles-Croix-de-Vie vous accompagne à toutes les étapes de votre projet et dans toutes vos démarches.
*********A SEULEMENT 5 MINUTES DES COMMERCES DE SAINT GILLES CROIX DE VIE**********
Mentions légales
Terrain proposé par un partenaire foncier selon disponibilités et autorisation de publicité au prix de 66 900 €. Hors droit d'enregistrement et frais de notaire. Maison proposée, avec un contrat de construction de maison individuelle, dans le cadre de la loi du 19/12/1990, au prix de 107 000 € (Hors branchements et raccordements, papiers peints, peintures, revêtement de sol dans les chambres, qui sont chiffrés dans les travaux qui restent à charge du client. Tarif modifiable sans préavis). Étiquette énergie : A. Différents modèles disponibles pour ce terrain. Assurances et garanties du constructeur comprises (RC professionnelle, décennale, dommage ouvrage).Agence Logis du Marais Poitevin de Saint-Gilles-Croix-de-Vie (85800)
- Téléphone :
- 02 51 55 34 29
- Adressse :
- 5 rue Gautté
85800 Saint-Gilles-Croix-de-Vie, France
