Maison neuve à
Gourlizon (29710) Référence : ML2487527_2

Prix du projet : Maison avec Terrain

prix 278 900 €

  • 4 pièces
  • 3 chambres
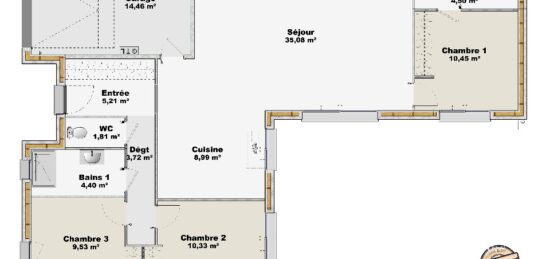
  • Surface maison 90 m2

Maison neuve de 90 m² à Gourlizon : Le confort du plain-pied sur un domaine majestueux
Un cadre de vie incomparable entre océan et campagne
Découvrez cette magnifique opportunité située à Gourlizon, une commune prisée pour son calme et sa qualité de vie. Cette maison de plain-pied offre un équilibre parfait pour ceux qui recherchent l'espace et la sérénité, tout en restant à proximité immédiate du littoral atlantique (9 km) et du dynamisme de Quimper. Profitez d'un environnement naturel préservé avec un accès facilité aux réseaux de transport de la région.

Les atouts majeurs de cette propriété
Agencement fonctionnel : Une maison de 4 pièces de plain-pied offrant 90 m² habitables parfaitement optimisés. Elle dispose de trois chambres confortables, d'une cuisine lumineuse et d'une salle de bains moderne.

Un terrain hors norme : Le véritable joyau de cette offre est son terrain exceptionnel de 49 900 m², une surface rare sur le marché permettant de réaliser vos projets les plus ambitieux (passion équestre, permaculture, ou simple besoin de liberté).

Vie locale et services : Bénéficiez d'un quotidien facilité par la proximité de l'école primaire (accessible en moins de 10 minutes à pied) et des commerces de bouche locaux.

Loisirs et infrastructures : Profitez des équipements de la commune, incluant une bibliothèque et un court de tennis, pour une vie sociale et sportive épanouie.

Votre projet 100 % sur mesure avec Maisons de l'Avenir Quimper
Ce modèle est une source d'inspiration pour votre futur habitat. Chez Maisons de l'Avenir Quimper, nous mettons un point d'honneur à créer des projets uniques qui répondent à vos attentes :

Conception personnalisée : Nous adaptons les plans, la distribution des pièces et les finitions pour que votre maison soit le reflet exact de vos envies et de votre mode de vie.

Performance et budget : Nos experts vous accompagnent pour concevoir une construction haute performance énergétique, tout en assurant une maîtrise totale de votre

Mentions légales

Terrain proposé par un partenaire foncier selon disponibilités et autorisation de publicité au prix de 49 900 €. Hors droit d'enregistrement et frais de notaire. Terrain + Maison proposés au prix de 278 900 € (Hors branchements et raccordements, papiers peints, peintures, revêtement de sol dans les chambres. Tarif modifiable sans préavis). Etiquette énergie : A. Différents modèles disponibles pour ce terrain. Assurances et garanties du constructeur (RC professionnelle, décennale, dommage ouvrage, garantie de remboursement de l'acompte, livraison à prix et délai convenu) : https://www.maisonsdelavenir.com/mentions-legales/.

Contactez l'agence de Quimper

02 98 54 75 20

    * Champs obligatoires

    Vos informations sont traitées par HEXAOM et transmises à un conseiller commercial qui vous contactera afin de répondre à votre demande. Les plans et images présentés sur notre site sont la propriété d’HEXAOM et ne peuvent pas être reproduits sans son accord. Pour retrouver notre politique de protection des données personnelles et exercer vos droits conformément à la « loi informatique et liberté » cliquez-ici.