Maison neuve à
Gouy (76520) Référence : AL2481622_9

Prix du projet : Maison avec Terrain

prix 270 560 €

  • 5 pièces
  • 3 chambres
  • Surface maison 90 m2

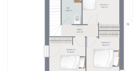
VENTE : maison F5 (90 m²) à Gouy
PROCHE DE ROUEN - MAISON 5 PIÈCES NEUVE
À vendre : localisée à quelques kilomètres de Rouen, notre agence Maisons France Confort Boos est heureuse de vous proposer cette maison de 5 pièces de 90 m² et de 460 m² de terrain à Gouy (76520).
C'est une maison de 2 niveaux. Elle offre trois chambres, une cuisine et une salle de bains. La maison est neuve.
Il y a l'École Primaire Préhistoval à moins de 10 minutes à pied. Niveau transports, on trouve cinq gares à moins de 10 minutes en voiture. Les autoroutes A13 et A139 et les nationales N138, N28 et N338 sont accessibles à moins de 10 km. Il y a une bibliothèque dans les environs.
Son prix de vente est de 270 560 €.
Contactez Maisons France Confort Boos 02 35 80 66 62 / 06 15 24 16 98 pour toute information sur cette maison, sur les modalités de vente ou sur les démarches à suivre. Donnez vie à vos projets immobiliers avec Maisons France Confort Boos.

Annonce proposée par un Agent Commercial Partenaire.

Mentions légales

Terrain proposé par un partenaire foncier selon disponibilités et autorisation de publicité au prix de 90 000 €. Hors droit d'enregistrement et frais de notaire. Terrain + Maison proposés au prix de 270 560 € (Hors branchements et raccordements, papiers peints, peintures, revêtement de sol dans les chambres. Tarif modifiable sans préavis). Etiquette énergie : A. Différents modèles disponibles pour ce terrain. Assurances et garanties du constructeur (RC professionnelle, décennale, dommage ouvrage, garantie de remboursement de l'acompte, livraison à prix et délai convenu) : https://www.maisons-france-confort.fr/mentions-legales/. HEXAOM Services est enregistré auprès de l'ORIAS en tant que Courtier en financement, Niveau 1, sous le numéro 14001345.

Contactez l'agence de Boos

02 35 80 66 62

    * Champs obligatoires

    Vos informations sont traitées par HEXAOM et transmises à un conseiller commercial qui vous contactera afin de répondre à votre demande. Les plans et images présentés sur notre site sont la propriété d’HEXAOM et ne peuvent pas être reproduits sans son accord. Pour retrouver notre politique de protection des données personnelles et exercer vos droits conformément à la « loi informatique et liberté » cliquez-ici.