Maison neuve à
Gratentour (31150) Référence : XF2423374_5

Prix du projet : Maison avec Terrain

prix 264 906 €

  • 6 pièces
  • 4 chambres
  • Surface maison 95 m2

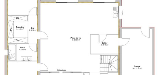
L'agence Maisons France Confort d'AUCAMVILLE vous présente ce magnifique projet terrain + maison à 9 minutes de GRATENTOUR . BASTIDE 95 est une construction traditionnelle à étage, répondant aux dernières normes RE 2020 et entièrement personnalisable. D'une surface habitable de 95m², elle se compose au rez-de-chaussée d'une grande pièce de vie séjour/cuisine de 41m², un WC, un cellier, et une suite parentale en option. A l'étage vous trouverez 3 chambres, une salle de bains et un WC. Le garage en option de 19m² est accolé à la maisons et accessible par le cellier. Le bien est proposé sur un terrain de 458 m².
Dans un cadre de vie idéal, à seulement 5 minutes de toutes les commodités et 20 minutes de Toulouse.
L'agence Maisons France Confort AUCAMVILLE est à votre disposition au 05 34 43 84 38 .
PRIX : 264 906 € HF

Annonce proposée par un Agent Commercial Partenaire.

Mentions légales

Terrain proposé par un partenaire foncier selon disponibilités et autorisation de publicité au prix de 99 500 €. Hors droit d'enregistrement et frais de notaire. Terrain + Maison proposés au prix de 264 906 € (Hors branchements et raccordements, papiers peints, peintures, revêtement de sol dans les chambres. Tarif modifiable sans préavis). Etiquette énergie : A. Différents modèles disponibles pour ce terrain. Assurances et garanties du constructeur (RC professionnelle, décennale, dommage ouvrage, garantie de remboursement de l'acompte, livraison à prix et délai convenu) : https://www.maisons-france-confort.fr/mentions-legales/. HEXAOM Services est enregistré auprès de l'ORIAS en tant que Courtier en financement, Niveau 1, sous le numéro 14001345.

Contactez l'agence de Aucamville

05 34 43 84 38

    * Champs obligatoires

    Vos informations sont traitées par HEXAOM et transmises à un conseiller commercial qui vous contactera afin de répondre à votre demande. Les plans et images présentés sur notre site sont la propriété d’HEXAOM et ne peuvent pas être reproduits sans son accord. Pour retrouver notre politique de protection des données personnelles et exercer vos droits conformément à la « loi informatique et liberté » cliquez-ici.