Maison neuve à
Grenade (31330) Référence : XF2423435_1

Prix du projet : Maison avec Terrain

prix 265 000 €

  • 4 pièces
  • 3 chambres
  • Surface maison 100 m2

OPPORTUNITE EXCEPTIONNELLE - Maison avec PC Accepté - démarrage des travaux immédiat !
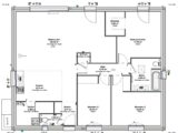
L'agence Maisons France Confort d'AUCAMVILLE vous propose suite à désistement un projet de construction RE 2020 avec cette maison de 100 m² au BURGAUD à 15 minutes de GRENADE . Idéale pour un premier investissement, cette maison neuve est de conception traditionnelle de plain-pied. elle comporte une entrée, un séjour/cuisine , un cellier, un WC et un espace nuit composé de 3 chambres et une salle de bains.
Au coeur de la campagne toulousaine, sur une parcelle constructible de 814 m², vous profiterez des toutes les commodités à seulement 2 minutes. Vous pourrez accéder à Toulouse en 30 minutes.
Votre conseiller de l'agence Maisons France Confort d'AUCAMVILLE est à votre disposition au 05 34 43 84 38 .
PRIX : 265 000 € avec frais inclus

Annonce proposée par un Agent Commercial Partenaire.

Mentions légales

Terrain proposé par un partenaire foncier selon disponibilités et autorisation de publicité au prix de 80 000 €. Hors droit d'enregistrement et frais de notaire. Terrain + Maison proposés au prix de 265 000 € (Hors branchements et raccordements, papiers peints, peintures, revêtement de sol dans les chambres. Tarif modifiable sans préavis). Etiquette énergie : A. Différents modèles disponibles pour ce terrain. Assurances et garanties du constructeur (RC professionnelle, décennale, dommage ouvrage, garantie de remboursement de l'acompte, livraison à prix et délai convenu) : https://www.maisons-france-confort.fr/mentions-legales/. HEXAOM Services est enregistré auprès de l'ORIAS en tant que Courtier en financement, Niveau 1, sous le numéro 14001345.

Contactez l'agence de Aucamville

05 34 43 84 38

    * Champs obligatoires

    Vos informations sont traitées par HEXAOM et transmises à un conseiller commercial qui vous contactera afin de répondre à votre demande. Les plans et images présentés sur notre site sont la propriété d’HEXAOM et ne peuvent pas être reproduits sans son accord. Pour retrouver notre politique de protection des données personnelles et exercer vos droits conformément à la « loi informatique et liberté » cliquez-ici.