Maison neuve à
Gretz-Armainvilliers
(77220) Référence :
IL2459528_1
Prix du projet : Maison avec Terrain
prix 339 000 €
- 5 pièces
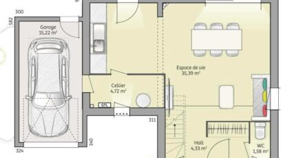
- 3 chambres
- Surface maison 90 m2
VENTE : maison F5 (90 m²) à Gretz-Armainvilliers
MAISON 5 PIÈCES NEUVE - PROCHE DE PARIS
À vendre : à 30 km de Paris, nous sommes heureux de vous proposer cette maison de 5 pièces de 90 m² et de 304 m² de terrain à Gretz-Armainvilliers (77220). Elle propose trois chambres, une cuisine et une salle de bains.
Il s'agit d'une maison de 2 niveaux. Elle est neuve.
Tous les types d'établissements scolaires sont implantés à moins de 10 minutes à pied. Niveau transports en commun, il y a la gare Gretz-Armainvilliers juste à côté. On trouve deux tennis, des commerces, des épiceries, deux boucheries-charcuteries et un bureau de poste à proximité du logement.
Elle est à vendre pour la somme de 339 000 €.
Contactez Ishane LASLEDJ (tél : 06-68-91-18-74) pour plus d'informations sur cette maison. Concrétisez vos projets immobiliers avec Maisons France Confort Magny-le-Hongre.
Annonce proposée par un Agent Commercial Partenaire.
Mentions légales
Terrain proposé par un partenaire foncier selon disponibilités et autorisation de publicité au prix de 175 000 €. Hors droit d'enregistrement et frais de notaire. Terrain + Maison proposés au prix de 339 000 € (Hors branchements et raccordements, papiers peints, peintures, revêtement de sol dans les chambres. Tarif modifiable sans préavis). Etiquette énergie : A. Différents modèles disponibles pour ce terrain. Assurances et garanties du constructeur (RC professionnelle, décennale, dommage ouvrage, garantie de remboursement de l'acompte, livraison à prix et délai convenu) : https://www.maisons-france-confort.fr/mentions-legales/. HEXAOM Services est enregistré auprès de l'ORIAS en tant que Courtier en financement, Niveau 1, sous le numéro 14001345.Agence Maisons France Confort de Magny-le-Hongre (77700)
- Téléphone :
- 01 84 80 92 96
- Adressse :
- 11 rue de Courtalin
77700 Magny-le-Hongre, France
