Maison neuve à
Grézac (17120) Référence : EN2461235_2

Prix du projet : Maison avec Terrain

prix 257 000 €

  • 4 pièces
  • 3 chambres
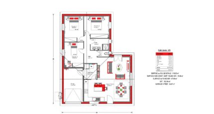
  • Surface maison 85 m2

Etienne NEAU conseiller chez Alpha Constructions vous propose cette belle maison de 85 m², avec garage intégré. Parfaite pour une famille, cette maison possède son coin nuit comprenant, 3 chambres une salle de bain ainsi que son WC. Vous aurez également une belle pièce de vie avec la cuisine ouverte sur le salon et son cellier attenant.
Retrouvez moi, directement en agence à Royan ou par téléphone au O6-12-13-45-65 Alpha Constructions vous accompagne dans toutes vos démarches et à toutes les étapes de votre projet.

Mentions légales

Terrain proposé par un partenaire foncier selon disponibilité dans le cadre d’un projet de construction avec Alpha Constructions. Les descriptions, photographies, surfaces et prix illustrant l’annonce sont fournies à titre indicatif et ne sont pas contractuels. Non soumis au DPE. Différents modèles disponibles.

Contactez l'agence de Royan

05 56 06 31 92

    * Champs obligatoires

    Vos informations sont traitées par HEXAOM et transmises à un conseiller commercial qui vous contactera afin de répondre à votre demande. Les plans et images présentés sur notre site sont la propriété d’HEXAOM et ne peuvent pas être reproduits sans son accord. Pour retrouver notre politique de protection des données personnelles et exercer vos droits conformément à la « loi informatique et liberté » cliquez-ici.