Maison neuve à
Grisy-Suisnes
(77166) Référence :
AD2472525_2
Prix du projet : Maison avec Terrain
prix 305 000 €
- 5 pièces
- 3 chambres
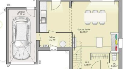
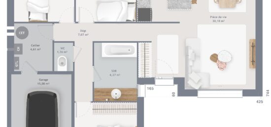
- Surface maison 90 m2
VENTE d'une maison T5 (90 m²) à Grisy-Suisnes
EMPLACEMENT PRIVILÉGIÉ - MAISON 5 PIÈCES NEUVE
En vente : à quelques minutes du RER E (station Gretz-Armainvilliers, 35 min de Paris), notre agence Maisons France Confort Nemours est ravie de vous présenter cette maison de 5 pièces de 90 m² bénéficiant d'un emplacement d'exception dans Grisy-Suisnes (77166).
Cette maison comporte 2 niveaux. Son intérieur se divise en trois chambres, une cuisine et une salle de bains. Cette maison est neuve.
Le terrain du bien s'étend sur 262 m².
La maison se situe dans un secteur prisé. L'École Élémentaire Champ Fleuri et l'École Maternelle la Ruche sont implantées à moins de 10 minutes à pied. Côté transports, il y a les lignes de RER E et D ainsi que cinq gares à moins de 10 minutes en voiture. On trouve un tennis, une bibliothèque, deux commerces, un bureau de poste et une épicerie dans les environs.
Elle est à vendre pour la somme de 305 000 €.
N'hésitez pas à prendre contact avec Anne DELOHEN (06-30-93-26-67) pour toute information sur la maison, sur les démarches à suivre ou sur les modalités de vente. Concrétisez vos projets immobiliers avec Maisons France Confort Nemours.
Annonce proposée par un Agent Commercial Partenaire.
Mentions légales
Terrain proposé par un partenaire foncier selon disponibilités et autorisation de publicité au prix de 120 000 €. Hors droit d'enregistrement et frais de notaire. Terrain + Maison proposés au prix de 305 000 € (Hors branchements et raccordements, papiers peints, peintures, revêtement de sol dans les chambres. Tarif modifiable sans préavis). Etiquette énergie : A. Différents modèles disponibles pour ce terrain. Assurances et garanties du constructeur (RC professionnelle, décennale, dommage ouvrage, garantie de remboursement de l'acompte, livraison à prix et délai convenu) : https://www.maisons-france-confort.fr/mentions-legales/. HEXAOM Services est enregistré auprès de l'ORIAS en tant que Courtier en financement, Niveau 1, sous le numéro 14001345.Agence Maisons France Confort de Nemours (77140)
- Téléphone :
- 01 64 28 58 32
- Adressse :
- 16 Avenue Carnot
77140 Nemours, France
