Maison neuve à
Guéron
(14400) Référence :
JS2322648_8
Prix du projet : Maison avec Terrain
prix 221 000 €
- 6 pièces
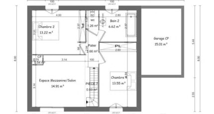
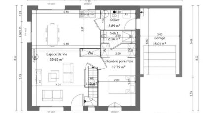
- 4 chambres
- Surface maison 110 m2
Bayeux : maison T6 (110 m²) en vente
MAISON 6 PIÈCES NEUVE - PROCHE DE CAEN
À 9 km de la Manche et à quelques kilomètres de Caen, nous vous présentons cette maison de 6 pièces de 110 m² à vendre à Bayeux (14400). Elle dispose de quatre chambres, d'une cuisine et de deux salles de bains.
Le terrain de la propriété est de 303 m².
Il s'agit d'une maison de 2 niveaux. Elle est neuve.
Il y a des écoles de tous types (de la maternelle au lycée) à moins de 10 minutes à pied, tout comme une crèche. Côté transports, on trouve la gare Bayeux à proximité. La nationale N13 est accessible à 3 km. Il y a une bibliothèque, des commerces, des boulangeries, un supermarché, trois épiceries et des boucheries-charcuteries dans les environs. 2 marchés animent les environs.
Elle est à vendre pour la somme de 221 000 €.
Contactez Emilie HUE (06-29-81-46-66) pour obtenir de plus amples informations sur cette maison. Maisons France Confort Bayeux vous accompagne dans tous vos projets immobiliers et dans toutes vos démarches.
Annonce proposée par un Agent Commercial Partenaire.
Mentions légales
Terrain proposé par un partenaire foncier selon disponibilités et autorisation de publicité au prix de 56 000 €. Hors droit d'enregistrement et frais de notaire. Maison proposée, avec un contrat de construction de maison individuelle, dans le cadre de la loi du 19/12/1990, au prix de 165 000 € (Hors branchements et raccordements, papiers peints, peintures, revêtement de sol dans les chambres, qui sont chiffrés dans les travaux qui restent à charge du client. Tarif modifiable sans préavis). Étiquette énergie : A. Différents modèles disponibles pour ce terrain. Assurances et garanties du constructeur comprises (RC professionnelle, décennale, dommage ouvrage).Agence Maisons France Confort de Bayeux (14400)
- Téléphone :
- 02 31 51 20 91
- Adressse :
- 2, rue Saint Loup
14400 Bayeux, France
