Maison neuve à 
  Guidel
 (56520)  Référence :
 CC2322748_2 
Prix du projet : Maison avec Terrain
prix 410 000 €
- 4 pièces
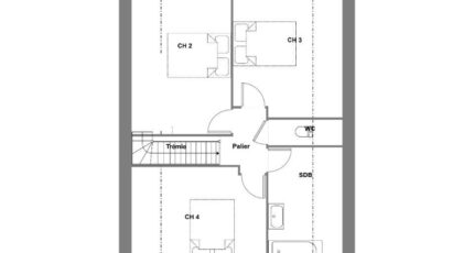
- 3 chambres
- Surface maison 89 m2
Guidel : maison T4 (89 m²) en vente
IDÉALEMENT SITUÉE - MAISON 4 PIÈCES NEUVE
À 5 km de l'océan Atlantique et à 10 km de Lorient, découvrez cette maison de 4 pièces de 89 m² et de 301 m² de terrain idéalement située dans Guidel (56520). Elle propose trois chambres, une cuisine et deux salles de bains.
Cette maison possède 2 niveaux. Elle est neuve.
Cette maison se trouve dans un quartier recherché. Il y a le Collège Privé Saint Jean Lasalle, l'École Primaire Privée Notre-Dame des Victoires et l'École Maternelle Publique Prat-Foën à moins de 10 minutes à pied. Niveau transports, on trouve deux gares (Gestel et Quimperlé) à moins de 10 minutes en voiture. Il y a un accès à la nationale N165 à 3 km. Il y a un tennis, une bibliothèque, un bassin de natation, des commerces, des boulangeries, deux supermarchés, un bureau de poste et une boucherie-charcuterie dans les environs. Enfin, le marché Place Le Montagnière a lieu tous les mercredis matin.
Elle est à vendre pour la somme de 410 000 €.
Prenez contact avec Christophe COLLOCH (tél : 02-97-21-63-96) pour toute question sur la maison, sur les démarches à suivre ou sur les modalités de vente. Concrétisez vos projets immobiliers avec Maisons de l'Avenir Lorient.
Mentions légales
Maisons de l’Avenir, constructeur de maisons individuelles, propose en collaboration avec ses partenaires fonciers, une sélection de terrains constructibles, selon disponibilité, pour la construction de maisons neuves définies par le constructeur, avec un contrat de construction de maison individuelle, dans le cadre de la loi du 19/12/1990. Prix net, hors frais notariés, d'enregistrement et de publicité foncière
Terrain proposé au prix de : 161 000 €
Maison proposée au prix de : 249 000 €
Etiquette énergie : A. Assurances et garanties du constructeur (RC professionnelle, décennale, dommage ouvrage, Garantie de livraison à prix et délai convenu). https://www.maisonsdelavenir.com/mentions-legales/
Agence Maisons de l'Avenir de Lorient (56100)
- Téléphone :
- 02 97 21 63 96
- Adressse :
-  158 rue du Colonel Muller
 56100 Lorient, France
 
  
  
  
  
  
  
  
  
  
 