Maison neuve à 
  Guidel
 (56520)  Référence :
 CC2323596_3 
Prix du projet : Maison avec Terrain
prix 429 000 €
- 4 pièces
- 3 chambres
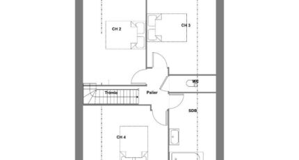
- Surface maison 89 m2
VENTE d'une maison F4 (89 m²) à Guidel
IDÉALEMENT SITUÉE - MAISON 4 PIÈCES NEUVE
Sur le littoral atlantique et à quelques kilomètres de Lorient, venez découvrir cette maison de 4 pièces de 89 m² idéalement située dans Guidel (56520).
Cette maison comporte 2 niveaux. Son intérieur est composé de trois chambres, d'une cuisine et de deux salles de bains. La maison est neuve.
Le terrain de la propriété est de 339 m².
La maison se trouve dans un quartier convoité. Il y a le Collège Privé Saint Jean Lasalle, l'École Primaire Privée Notre-Dame des Victoires et l'École Maternelle Publique Prat-Foën à moins de 10 minutes à pied. Côté transports en commun, on trouve deux gares (Gestel et Quimperlé) à moins de 10 minutes en voiture. Il y a un accès à la nationale N165 à 3 km. Il y a un tennis, une bibliothèque, un bassin de natation, des commerces, des boulangeries, deux supermarchés, une boucherie-charcuterie et une poissonnerie à quelques minutes de la maison. Ne manquez pas le marché Place Le Montagnière tous les mercredis matin.
Elle est à vendre pour la somme de 429 000 €.
Contactez Christophe COLLOCH (tél : 02-97-21-63-96) pour plus d'informations sur la maison ou sur les démarches à suivre. Maisons de l'Avenir Lorient vous accompagne dans tous vos projets immobiliers et dans toutes vos démarches.
Mentions légales
Maisons de l’Avenir, constructeur de maisons individuelles, propose en collaboration avec ses partenaires fonciers, une sélection de terrains constructibles, selon disponibilité, pour la construction de maisons neuves définies par le constructeur, avec un contrat de construction de maison individuelle, dans le cadre de la loi du 19/12/1990. Prix net, hors frais notariés, d'enregistrement et de publicité foncière
Terrain proposé au prix de : 171 000 €
Maison proposée au prix de : 258 000 €
Etiquette énergie : A. Assurances et garanties du constructeur (RC professionnelle, décennale, dommage ouvrage, Garantie de livraison à prix et délai convenu). https://www.maisonsdelavenir.com/mentions-legales/
Agence Maisons de l'Avenir de Lorient (56100)
- Téléphone :
- 02 97 21 63 96
- Adressse :
-  158 rue du Colonel Muller
 56100 Lorient, France
 
  
  
  
  
  
  
  
  
  
 