Maison neuve à
Guidel
(56520) Référence :
CC2493049_3
Prix du projet : Maison avec Terrain
prix 435 000 €
- 4 pièces
- 3 chambres
- Surface maison 89 m2
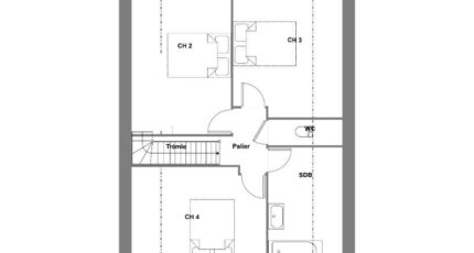
VENTE d'une maison F4 (89 m²) à Guidel
QUARTIER RECHERCHÉ - MAISON 4 PIÈCES NEUVE
En vente : sur le littoral atlantique et à quelques kilomètres de Lorient, dans un secteur prisé de Guidel (56520), découvrez cette maison de 4 pièces de 89 m².
Cette maison possède 2 niveaux. Son intérieur compte trois chambres, une cuisine et deux salles de bains. La maison est neuve.
Le terrain de la propriété est de 340 m².
Ce bien se situe dans un quartier recherché. Le Collège Privé Saint Jean Lasalle, l'École Primaire Privée Notre-Dame des Victoires et l'École Maternelle Publique Prat-Foën sont implantés à moins de 10 minutes à pied. Côté transports, il y a les gares Gestel et Quimperlé à moins de 10 minutes en voiture. La nationale N165 est accessible à 3 km. On trouve un tennis, une bibliothèque, un bassin de natation, des commerces, une boucherie-charcuterie, une épicerie, un bureau de poste et une poissonnerie dans les environs. Ne manquez pas le marché Place Le Montagnière tous les mercredis matin.
Il est à vendre pour la somme de 435 000 €.
Contactez Christophe COLLOCH pour toute question sur la maison ou sur les démarches à suivre. Maisons de l'Avenir Lorient vous accompagne à toutes les étapes de votre projet et dans tous vos projets immobiliers.
Mentions légales
Terrain proposé par un partenaire foncier selon disponibilités et autorisation de publicité au prix de 171 000 €. Hors droit d'enregistrement et frais de notaire. Terrain + Maison proposés au prix de 435 000 € (Hors branchements et raccordements, papiers peints, peintures, revêtement de sol dans les chambres. Tarif modifiable sans préavis). Etiquette énergie : A. Différents modèles disponibles pour ce terrain. Assurances et garanties du constructeur (RC professionnelle, décennale, dommage ouvrage, garantie de remboursement de l'acompte, livraison à prix et délai convenu) : https://www.maisonsdelavenir.com/mentions-legales/.Agence Maisons de l'Avenir de Lorient (56100)
- Téléphone :
- 02 97 21 63 96
- Adressse :
- 158 rue du Colonel Muller
56100 Lorient, France
