Maison neuve à
Guignes
(77390) Référence :
CY2406456_2
Prix du projet : Maison avec Terrain
prix 291 900 €
- 5 pièces
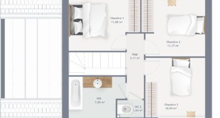
- 3 chambres
- Surface maison 90 m2
Maison de 5 pièces (90 m²) à vendre à Guignes
IDÉALEMENT SITUÉE - MAISON 5 PIÈCES NEUVE
En vente : à quelques minutes du Transilien P (gare de Verneuil-l'Étang, 30 min de Paris), nous sommes heureux de vous présenter cette maison de 5 pièces de 90 m² idéalement située dans Guignes (77390). Elle compte trois chambres, une cuisine et une salle de bains.
Le terrain du bien est de 748 m².
Il s'agit d'une maison de 2 niveaux. Elle est neuve.
Cette maison se trouve dans un quartier convoité. On y trouve l'École Élémentaire André Siméon et l'École Maternelle André Siméon. Niveau transports, il y a les gares Verneuil-l'Étang et Mormant à moins de 10 minutes en voiture. On trouve deux boulangeries, quatre commerces, un bureau de poste et deux épiceries à proximité de la maison.
Elle est proposée à l'achat pour 291 900 €.
Contactez notre agence (YAHIAOUI Cedric : 06-66-57-00-63) pour toute information sur la maison.
Annonce proposée par un Agent Commercial Partenaire.
Mentions légales
Terrain proposé par un partenaire foncier selon disponibilités et autorisation de publicité au prix de 129 900 €. Hors droit d'enregistrement et frais de notaire. Terrain + Maison proposés au prix de 291 900 € (Hors branchements et raccordements, papiers peints, peintures, revêtement de sol dans les chambres. Tarif modifiable sans préavis). Etiquette énergie : A. Différents modèles disponibles pour ce terrain. Assurances et garanties du constructeur (RC professionnelle, décennale, dommage ouvrage, garantie de remboursement de l'acompte, livraison à prix et délai convenu) : https://www.maisons-france-confort.fr/mentions-legales/. HEXAOM Services est enregistré auprès de l'ORIAS en tant que Courtier en financement, Niveau 1, sous le numéro 14001345.Agence Maisons France Confort de Mareuil-lès-Meaux (77100)
- Téléphone :
- 01 60 09 28 30
- Adressse :
- Domexpo Est Village La Hayette
77100 Mareuil-lès-Meaux, France