Maison neuve à
Hantay (59496) Référence : CS2493355_2

Prix du projet : Maison avec Terrain

prix 339 340 €

  • 4 pièces
  • 3 chambres
  • Surface maison 100 m2

Hantay : maison F4 (100 m²) à vendre
QUARTIER RECHERCHÉ - MAISON 4 PIÈCES NEUVE
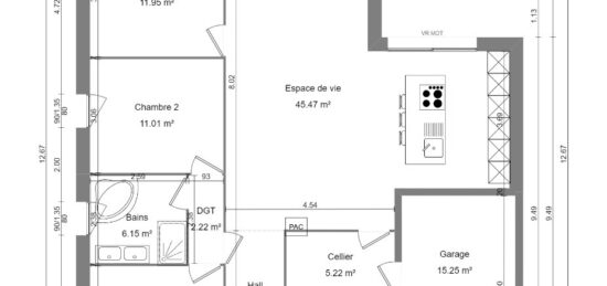
À vendre à quelques kilomètres de la Belgique et à 16 km de Lille, nous sommes ravis de vous présenter, située dans un quartier attractif d'Hantay (59496), cette maison de 4 pièces de plain-pied de 100 m².
Son intérieur se divise en trois chambres, une cuisine et deux salles de bains. Cette maison est neuve.
Le terrain du bien est de 410 m².
Elle se trouve dans un secteur recherché. L'École Primaire Jean Macé est implantée à moins de 10 minutes à pied. Niveau transports, il y a 11 gares à moins de 10 minutes en voiture. Les autoroutes A1 et A21 et les nationales N47 et N41 sont accessibles à moins de 10 km. On trouve un tennis et une bibliothèque à quelques minutes.
Elle est à vendre pour la somme de 339 340 €.
N'hésitez pas à prendre contact avec notre agence (Christian SMOLAREK : 06-71-36-79-31) pour tout renseignement sur cette maison, sur les modalités de vente ou sur les démarches à suivre. Maisons France Confort Valenciennes vous accompagne à toutes les étapes de votre projet et dans tous vos projets immobiliers.

Mentions légales

Terrain proposé par un partenaire foncier selon disponibilités et autorisation de publicité au prix de 133 000 €. Hors droit d'enregistrement et frais de notaire. Terrain + Maison proposés au prix de 339 340 € (Hors branchements et raccordements, papiers peints, peintures, revêtement de sol dans les chambres. Tarif modifiable sans préavis). Etiquette énergie : A. Différents modèles disponibles pour ce terrain. Assurances et garanties du constructeur (RC professionnelle, décennale, dommage ouvrage, garantie de remboursement de l'acompte, livraison à prix et délai convenu) : https://www.maisons-france-confort.fr/mentions-legales/. HEXAOM Services est enregistré auprès de l'ORIAS en tant que Courtier en financement, Niveau 1, sous le numéro 14001345.

Contactez l'agence de Valenciennes

03 27 09 13 49

    * Champs obligatoires

    Vos informations sont traitées par HEXAOM et transmises à un conseiller commercial qui vous contactera afin de répondre à votre demande. Les plans et images présentés sur notre site sont la propriété d’HEXAOM et ne peuvent pas être reproduits sans son accord. Pour retrouver notre politique de protection des données personnelles et exercer vos droits conformément à la « loi informatique et liberté » cliquez-ici.