Maison neuve à
Henrichemont (18250) Référence : FH2452660_2

Prix du projet : Maison avec Terrain

prix 157 689 €

  • 4 pièces
  • 3 chambres
  • Surface maison 85 m2

VENTE d'une maison T4 (85 m²) à Henrichemont
MAISON 4 PIÈCES NEUVE - PROCHE DE BOURGES
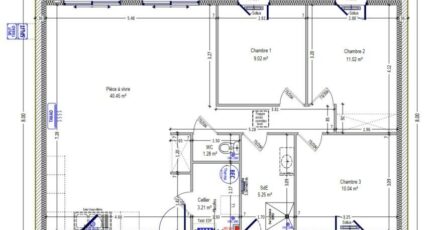
À vendre : à quelques kilomètres de Bourges, nous sommes heureux de vous présenter cette maison de 4 pièces de plain-pied de 85 m² et de 1 200 m² de terrain à Henrichemont (18250). Conçue de plain-pied, elle se divise en trois chambres, une cuisine et une salle de bains.
La maison est neuve.
Deux établissements scolaires se trouvent à moins de 10 minutes à pied, tout comme dont le Collège Bethune-Sully. Il y a un bassin de natation, trois commerces, une supérette, une boucherie-charcuterie et un bureau de poste à proximité. Le marché Place Henri IV anime le quartier tous les mercredis matin.
Elle est proposée à l'achat pour 157 689 €.
N'hésitez pas à prendre contact avec Fabien HELLELI (02-48-50-26-25) pour obtenir de plus amples informations sur cette maison ou sur les démarches à suivre. Maisons Bruno Petit MJB Bourges vous accompagne à toutes les étapes de votre projet et dans tous vos projets immobiliers.

Mentions légales

Terrain proposé par un partenaire foncier selon disponibilités et autorisation de publicité au prix de 35 900 €. Hors droit d'enregistrement et frais de notaire. Terrain + Maison proposés au prix de 157 689 € (Hors branchements et raccordements, papiers peints, peintures, revêtement de sol dans les chambres. Tarif modifiable sans préavis). Etiquette énergie : A. Différents modèles disponibles pour ce terrain. Assurances et garanties du constructeur (RC professionnelle, décennale, dommage ouvrage, garantie de remboursement de l'acompte, livraison à prix et délai convenu) : https://www.maisons-brunopetit.fr/mentions-legales/.

Contactez l'agence de Bourges

02 48 50 26 25

    * Champs obligatoires

    Vos informations sont traitées par HEXAOM et transmises à un conseiller commercial qui vous contactera afin de répondre à votre demande. Les plans et images présentés sur notre site sont la propriété d’HEXAOM et ne peuvent pas être reproduits sans son accord. Pour retrouver notre politique de protection des données personnelles et exercer vos droits conformément à la « loi informatique et liberté » cliquez-ici.