Maison neuve à
Herzeele (59470) Référence : SH2453094_6

Prix du projet : Maison avec Terrain

prix 280 000 €

  • 4 pièces
  • 3 chambres
  • Surface maison 94 m2

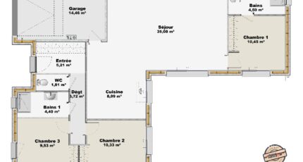
Découvrez cette magnifique maison de plain-pied en forme de L , pensée pour offrir confort , luminosité et qualité de vie au quotidien .

Elle se compose d'une grande pièce de vie spacieuse et lumineuse , idéale pour partager des moments en famille ou entre amis .
L'espace nuit comprend deux chambres ainsi qu'une suite parentale avec sa salle d'eau .
Un garage et son cellier viennent compléter ce bien .
La conception en L permet de créer un espace extérieur agréable et protégé, idéal pour une terrasse ou un jardin intime .

Construite en ossature bois , cette maison offrent de nombreux avantages .Ce mode de construction reconnu garantit une excellente performance thermique , permettant de réaliser des économies d'énergie tout en profitant d'un confort optimal en toute saison.
Le bois apporte également une ambiance chaleureuse et naturelle , tout en étant un matériau écologique et durable .
Une maison moderne , confortable et respectueuse de l'environnement .

Nos plans sont modulables et adaptables sur mesure selon vos goûts .

Elle est proposée à l'achat pour 230 000€.
N'hésitez pas à prendre contact avec notre agence (Séverine Huez : o7-78-16-06-91) pour toute question sur la maison, sur les modalités de vente ou sur les démarches à suivre.

Annonce proposée par un Agent Commercial Partenaire.

Mentions légales

Terrain proposé par un partenaire foncier selon disponibilités et autorisation de publicité au prix de 78 120 €. Hors droit d'enregistrement et frais de notaire. Terrain + Maison proposés au prix de 280 000 € (Hors branchements et raccordements, papiers peints, peintures, revêtement de sol dans les chambres. Tarif modifiable sans préavis). Etiquette énergie : A. Différents modèles disponibles pour ce terrain. Assurances et garanties du constructeur (RC professionnelle, décennale, dommage ouvrage, garantie de remboursement de l'acompte, livraison à prix et délai convenu) : https://www.maisons-france-confort.fr/mentions-legales/. HEXAOM Services est enregistré auprès de l'ORIAS en tant que Courtier en financement, Niveau 1, sous le numéro 14001345.

Contactez l'agence de Dunkerque

03 28 29 82 40

    * Champs obligatoires

    Vos informations sont traitées par HEXAOM et transmises à un conseiller commercial qui vous contactera afin de répondre à votre demande. Les plans et images présentés sur notre site sont la propriété d’HEXAOM et ne peuvent pas être reproduits sans son accord. Pour retrouver notre politique de protection des données personnelles et exercer vos droits conformément à la « loi informatique et liberté » cliquez-ici.