Maison neuve à
Hourtin
(33990) Référence :
DC2414336_1
Prix du projet : Maison avec Terrain
prix 275 600 €
- 4 pièces
- 3 chambres
- Surface maison 100 m2
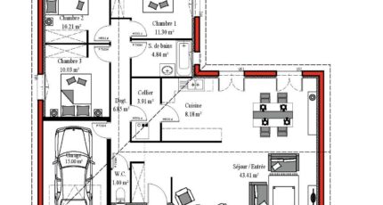
VENTE d'une maison de 4 pièces (100 m²) à Hourtin
EMPLACEMENT PRIVILÉGIÉ - MAISON 4 PIÈCES NEUVE
À vendre : à 13 km de l'océan Atlantique, bénéficiant d'un emplacement privilégié dans Hourtin (33990), nous sommes ravis de vous présenter cette maison de 4 pièces de plain-pied de 100 m². Elle dispose de trois chambres, d'une cuisine et d'une salle de bains.
Le terrain de la propriété s'étend sur 401 m².
La maison est neuve.
Cette propriété se situe dans un secteur attractif. Le Collège Jules Chambrelent et l'École Primaire J.G. Teyssier se trouvent à moins de 10 minutes à pied, tout comme deux structures d'accueil pour la petite enfance. Il y a des commerces, une boulangerie, deux supermarchés, une supérette et une poissonnerie à quelques minutes à peine.
Son prix de vente est de 275 600 €.
N'hésitez pas à prendre contact avec David CAZAUBON (O6-11-78-42-56) pour plus de renseignements sur la maison, sur les modalités de vente ou sur les démarches à suivre.
Mentions légales
Idée de réalisation en modèle prêt à décorer sur l’un de nos terrains partenaires, sous réserve de disponibilités. Voir détails en agence.Agence Batisoft de Bordeaux (33000)
- Téléphone :
- 05 35 37 13 70
- Adressse :
- Village Homexpo - Parc des expositions
33000 Bordeaux, France
