Maison neuve à
Igoville (27460) Référence : KG2258146_2

Prix du projet : Maison avec Terrain

prix 222 000 €

  • 6 pièces
  • 4 chambres
  • Surface maison 91 m2

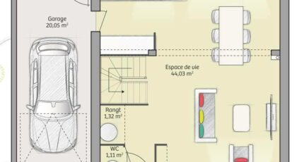
VENTE d'une maison de 6 pièces (91 m²) à Igoville
MAISON 6 PIÈCES NEUVE - PROCHE DE ROUEN
En vente : Jolie maison à étage de plus de 90m², 4 chambres, Grand séjour lumineux, cuisine ouverte, entrée séparée avec WC indépendant, un second WC à l'étage ainsi qu'une salle de bain. L'agencement a été pensé pour répondre aux besoin de votre famille et pour que chacun ai son espace.
Système de chauffage par pompe a chaleur, grande baie coulissante plein SUD, tout est pensé afin d'optimiser la circulation pour votre plus grand confort.
Contactez rapidement Karen GOHIER au 06 71 52 61 13 pour plus de renseignements sur ce modèle de maison.

Annonce proposée par un Agent Commercial Partenaire.

Mentions légales

Terrain proposé par un partenaire foncier selon disponibilités et autorisation de publicité au prix de 64 000 €. Hors droit d'enregistrement et frais de notaire. Maison proposée, avec un contrat de construction de maison individuelle, dans le cadre de la loi du 19/12/1990, au prix de 158 000 € (Hors branchements et raccordements, papiers peints, peintures, revêtement de sol dans les chambres, qui sont chiffrés dans les travaux qui restent à charge du client. Tarif modifiable sans préavis). Étiquette énergie : A. Différents modèles disponibles pour ce terrain. Assurances et garanties du constructeur comprises (RC professionnelle, décennale, dommage ouvrage).

Contactez l'agence de Louviers

02 32 51 43 53

    * Champs obligatoires

    Vos informations sont traitées par HEXAOM et transmises à un conseiller commercial qui vous contactera afin de répondre à votre demande. Les plans et images présentés sur notre site sont la propriété d’HEXAOM et ne peuvent pas être reproduits sans son accord. Pour retrouver notre politique de protection des données personnelles et exercer vos droits conformément à la « loi informatique et liberté » cliquez-ici.