Maison neuve à
Inzinzac-Lochrist
(56650) Référence :
RLBC2495454_4
Prix du projet : Maison avec Terrain
prix 243 300 €
- 4 pièces
- 3 chambres
- Surface maison 73 m2
MAISON NEUVE 4 PIÈCES DE 73 M² PROCHE CENTRE-VILLE À INZINZAC-LOCHRIST
PRÉSENTATION DU BIEN
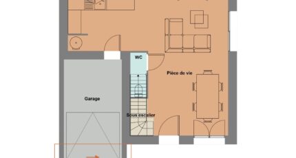
Située à Inzinzac-Lochrist, cette maison neuve à construire se trouve proche du centre-ville. Elle offre une surface habitable de 73 m² implantée sur un terrain de 280 m².
Cette maison compte trois chambres et une salle de bains avec baignoire. Une cuisine est incluse dans la conception du bien.
La maison s'élève sur deux niveaux, offrant ainsi un espace réparti sur un rez-de-chaussée et un étage.
Le terrain de 280 m² apporte un espace extérieur appréciable autour de la maison.
ENVIRONNEMENT
Inzinzac-Lochrist est une commune proche de Lorient, située à 15 km environ. L'océan Atlantique se trouve à 22 km du bien. Deux gares, Hennebont et Brandérion, sont accessibles à une distance de 5 à 9 km. Les autoroutes N24 et N165 sont situées entre 5 et 7 km. Deux écoles primaires, l'école primaire privée Notre-Dame de Lourdes et l'école primaire publique Jules Ferry, sont accessibles à pied en moins de 15 minutes. Des commerces sont présents autour du bien.
NOUS CONTACTER
Cette maison à vendre est proposée au prix de 243 300 euros, honoraires et charges comprises.
Pour plus d'informations ou pour organiser une visite, contactez Riwal LE BARON COURTET de l'agence Maisons de l'Avenir Lorient au 02-97-21-63-96. Réalisez votre projet et construisez votre maison dans ce secteur résidentiel.
Mentions légales
Terrain proposé par un partenaire foncier selon disponibilités et autorisation de publicité au prix de 59 900 €. Hors droit d'enregistrement et frais de notaire. Terrain + Maison proposés au prix de 243 300 € (Hors branchements et raccordements, papiers peints, peintures, revêtement de sol dans les chambres. Tarif modifiable sans préavis). Etiquette énergie : A. Différents modèles disponibles pour ce terrain. Assurances et garanties du constructeur (RC professionnelle, décennale, dommage ouvrage, garantie de remboursement de l'acompte, livraison à prix et délai convenu) : https://www.maisonsdelavenir.com/mentions-legales/.Agence Maisons de l'Avenir de Lorient (56100)
- Téléphone :
- 02 97 21 63 96
- Adressse :
- 158 rue du Colonel Muller
56100 Lorient, France
