Maison neuve à
Jolimetz (59530) Référence : CS2408346_2

Prix du projet : Maison avec Terrain

prix 345 340 €

  • 4 pièces
  • 3 chambres
  • Surface maison 100 m2

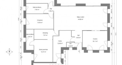
Potelle : maison F4 (100 m²) à vendre
QUARTIER RECHERCHÉ - MAISON 4 PIÈCES NEUVE
À quelques kilomètres de la Belgique et à deux pas de Valenciennes, ayez le coup de coeur pour cette maison de 4 pièces de plain-pied de 100 m² construite dans un quartier convoité de Potelle (59530). Son intérieur est composé de trois chambres, d'une cuisine et de deux salles de bains.
Le terrain de la propriété est de 600 m².
La maison est neuve.
Elle se trouve dans un secteur prisé. Des établissements scolaires de tous niveaux (de la maternelle au lycée) sont implantés à moins de 10 minutes en voiture. Côté transports en commun, il y a la gare Le Quesnoy dans un rayon de 10 km. On trouve des tennis, des bibliothèques, des commerces, trois supermarchés, des boulangeries, une poissonnerie et trois supérettes à quelques minutes à peine.
Son prix de vente est de 345 340 €.
Contactez Christian SMOLAREK (tél : 06-71-36-79-31) pour obtenir de plus amples renseignements sur cette maison ou sur les modalités de vente. Maisons France Confort Valenciennes est là pour vous accompagner à toutes les étapes de l'achat.

Mentions légales

Terrain proposé par un partenaire foncier selon disponibilités et autorisation de publicité au prix de 57 400 €. Hors droit d'enregistrement et frais de notaire. Terrain + Maison proposés au prix de 345 340 € (Hors branchements et raccordements, papiers peints, peintures, revêtement de sol dans les chambres. Tarif modifiable sans préavis). Etiquette énergie : A. Différents modèles disponibles pour ce terrain. Assurances et garanties du constructeur (RC professionnelle, décennale, dommage ouvrage, garantie de remboursement de l'acompte, livraison à prix et délai convenu) : https://www.maisons-france-confort.fr/mentions-legales/. HEXAOM Services est enregistré auprès de l'ORIAS en tant que Courtier en financement, Niveau 1, sous le numéro 14001345.

Contactez l'agence de Valenciennes

03 27 09 13 49

    * Champs obligatoires

    Vos informations sont traitées par HEXAOM et transmises à un conseiller commercial qui vous contactera afin de répondre à votre demande. Les plans et images présentés sur notre site sont la propriété d’HEXAOM et ne peuvent pas être reproduits sans son accord. Pour retrouver notre politique de protection des données personnelles et exercer vos droits conformément à la « loi informatique et liberté » cliquez-ici.