Maison neuve à
Jouarre (77640) Référence : CY2431745_1

Prix du projet : Maison avec Terrain

prix 237 000 €

  • 5 pièces
  • 3 chambres
  • Surface maison 90 m2

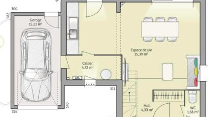
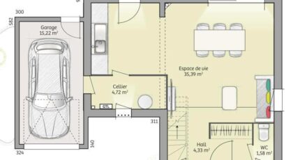
Jouarre : maison de 5 pièces (90 m²) en vente
MAISON 5 PIÈCES NEUVE - PROCHE DE MEAUX
Au pied du Transilien P (gare de La Ferté-sous-Jouarre, 40 min de Paris), nous vous présentons cette maison de 5 pièces de 90 m² et de 730 m² de terrain à Jouarre (77640).
Cette maison possède 2 niveaux. Son intérieur dispose de trois chambres, d'une cuisine et d'une salle de bains. Cette maison est neuve.
L'École Élémentaire Jehan de Brie et l'École Maternelle Jussieu se trouvent à moins de 10 minutes à pied. Niveau transports, il y a trois gares (La Ferté-sous-Jouarre, Nanteuil-Saâcy et Changis-Saint-Jean) à moins de 10 minutes en voiture. On trouve un commerce, deux boulangeries, une épicerie et une boucherie-charcuterie dans les environs.
Elle est à vendre pour la somme de 237 000 €.
Contactez Cedric YAHIAOUI (tél : 06-66-57-00-63) pour toute question sur la propriété.

Annonce proposée par un Agent Commercial Partenaire.

Mentions légales

Terrain proposé par un partenaire foncier selon disponibilités et autorisation de publicité au prix de 77 000 €. Hors droit d'enregistrement et frais de notaire. Terrain + Maison proposés au prix de 237 000 € (Hors branchements et raccordements, papiers peints, peintures, revêtement de sol dans les chambres. Tarif modifiable sans préavis). Etiquette énergie : A. Différents modèles disponibles pour ce terrain. Assurances et garanties du constructeur (RC professionnelle, décennale, dommage ouvrage, garantie de remboursement de l'acompte, livraison à prix et délai convenu) : https://www.maisons-france-confort.fr/mentions-legales/. HEXAOM Services est enregistré auprès de l'ORIAS en tant que Courtier en financement, Niveau 1, sous le numéro 14001345.

Contactez l'agence de Magny-le-Hongre

01 84 80 92 96

    * Champs obligatoires

    Vos informations sont traitées par HEXAOM et transmises à un conseiller commercial qui vous contactera afin de répondre à votre demande. Les plans et images présentés sur notre site sont la propriété d’HEXAOM et ne peuvent pas être reproduits sans son accord. Pour retrouver notre politique de protection des données personnelles et exercer vos droits conformément à la « loi informatique et liberté » cliquez-ici.