Maison neuve à
Jouy-sur-Morin (77320) Référence : FS2414482_3

Prix du projet : Maison avec Terrain

prix 246 000 €

  • 5 pièces
  • 4 chambres
  • Surface maison 101 m2

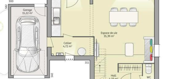
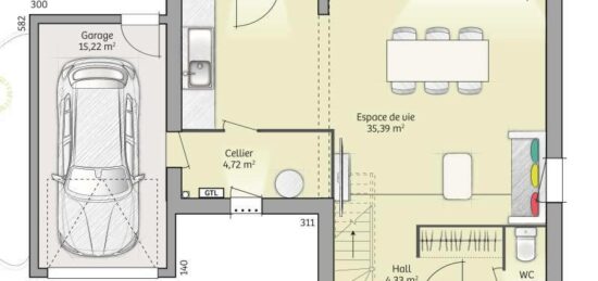
Jouy-sur-Morin : maison de 5 pièces (101 m²) en vente
MAISON 5 PIÈCES NEUVE
Nous sommes heureux de vous présenter cette maison de 5 pièces de plain-pied de 101 m² et de 766 m² de terrain à vendre à Jouy-sur-Morin (77320).
Elle est composée de quatre chambres, d'une cuisine et d'une salle de bains. La maison est neuve.
L'École Élémentaire du Centre et l'École Primaire le Champlat sont implantées à moins de 10 minutes à pied. On trouve une boulangerie et une épicerie dans les environs.
Elle est à vendre pour la somme de 246 000 €.
Prenez contact avec Félix SOUMARMON (06-10-24-97-84) pour toute information sur la maison ou sur les démarches à suivre.

Annonce proposée par un Agent Commercial Partenaire.

Mentions légales

Terrain proposé par un partenaire foncier selon disponibilités et autorisation de publicité au prix de 66 000 €. Hors droit d'enregistrement et frais de notaire. Terrain + Maison proposés au prix de 246 000 € (Hors branchements et raccordements, papiers peints, peintures, revêtement de sol dans les chambres. Tarif modifiable sans préavis). Etiquette énergie : A. Différents modèles disponibles pour ce terrain. Assurances et garanties du constructeur (RC professionnelle, décennale, dommage ouvrage, garantie de remboursement de l'acompte, livraison à prix et délai convenu) : https://www.maisons-france-confort.fr/mentions-legales/. HEXAOM Services est enregistré auprès de l'ORIAS en tant que Courtier en financement, Niveau 1, sous le numéro 14001345.

Contactez l'agence de Magny-le-Hongre

01 84 80 92 96

    * Champs obligatoires

    Vos informations sont traitées par HEXAOM et transmises à un conseiller commercial qui vous contactera afin de répondre à votre demande. Les plans et images présentés sur notre site sont la propriété d’HEXAOM et ne peuvent pas être reproduits sans son accord. Pour retrouver notre politique de protection des données personnelles et exercer vos droits conformément à la « loi informatique et liberté » cliquez-ici.