Maison neuve à
Juigné-sur-Loire (49610) Référence : CP2392007_2

Prix du projet : Maison avec Terrain

prix 298 000 €

  • 5 pièces
  • 3 chambres
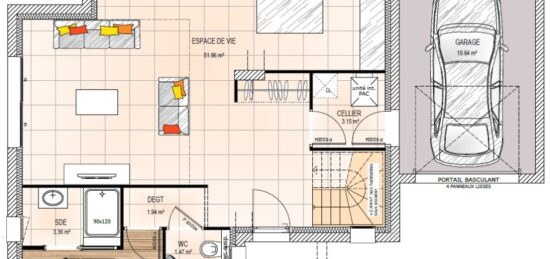
  • Surface maison 84 m2

Juigné-sur-Loire : maison T5 (84 m²) en vente
IDÉALEMENT SITUÉE - MAISON 5 PIÈCES NEUVE
En vente : à 11 km d'Angers, Maisons Bernard Jambert Angers vous présente, idéalement située dans Juigné-sur-Loire (49610), cette maison de 5 pièces de 84 m². Elle est composée de trois chambres, d'une cuisine et de deux salles de bains.
Le terrain de la propriété est de 496 m².
Il s'agit d'une maison de 2 niveaux. Elle est neuve.
Cette maison se situe dans un secteur convoité. Il y a l'École Primaire Privée Saint Germain et l'École Primaire Publique les Deux Moulins à moins de 10 minutes à pied et une structure d'accueil pour les enfants en bas âge. Niveau transports, on trouve quatre gares à moins de 10 minutes en voiture. Les autoroutes A87N et A87 sont accessibles à moins de 4 km. Il y a un tennis, deux commerces, une boulangerie, un bureau de poste et une boucherie-charcuterie à quelques minutes.
Elle est proposée à l'achat pour 298 000 €.
N'hésitez pas à prendre contact avec notre agence (Carole PORCHER : 06-88-98-52-77) pour tout renseignement sur la maison. Concrétisez vos projets immobiliers avec Maisons Bernard Jambert Angers.

Mentions légales

Terrain proposé par un partenaire foncier selon disponibilités et autorisation de publicité au prix de 89 000 €. Hors droit d'enregistrement et frais de notaire. Terrain + Maison proposés au prix de 298 000 € (Hors branchements et raccordements, papiers peints, peintures, revêtement de sol dans les chambres. Tarif modifiable sans préavis). Etiquette énergie : A. Différents modèles disponibles pour ce terrain. Assurances et garanties du constructeur (RC professionnelle, décennale, dommage ouvrage, garantie de remboursement de l'acompte, livraison à prix et délai convenu) : https://www.maisons-bernard-jambert.com/informations-legales/.

Contactez l'agence de Angers

02 41 77 17 17

    * Champs obligatoires

    Vos informations sont traitées par HEXAOM et transmises à un conseiller commercial qui vous contactera afin de répondre à votre demande. Les plans et images présentés sur notre site sont la propriété d’HEXAOM et ne peuvent pas être reproduits sans son accord. Pour retrouver notre politique de protection des données personnelles et exercer vos droits conformément à la « loi informatique et liberté » cliquez-ici.