Maison neuve à
Juillan
(65290) Référence :
VC2447832_2
Prix du projet : Maison avec Terrain
prix 288 700 €
- 5 pièces
- 4 chambres
- Surface maison 115 m2
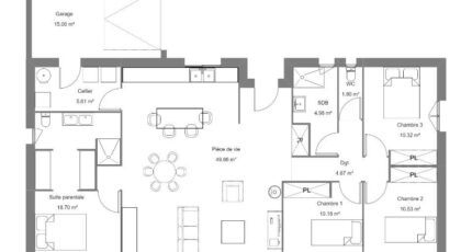
VENTE : maison F5 (115 m²) à Juillan
IDÉALEMENT SITUÉE - MAISON 5 PIÈCES NEUVE
À vendre : proche de Tarbes, idéalement située dans Juillan (65290), ayez le coup de coeur pour cette maison de 5 pièces de plain-pied de 115 m². Elle propose quatre chambres, une cuisine et deux salles de bains. Elle possède également un garage.
Le terrain de la maison s'étend sur 701 m².
La maison est neuve.
Cette maison est située dans un secteur prisé. Des écoles primaires sont implantées à moins de 10 minutes à pied.
On trouve des commerces, un bureau de poste et une boucherie-charcuterie à quelques minutes de la maison.
Elle est proposée à l'achat pour 288 700 €.
Contactez notre agence (Vincent CAUSSIEU : 06-10-82-28-65) pour toute information sur la maison, sur les démarches à suivre et sur les modalités de vente. Maisons Bruno Petit GHPA Juillan vous accompagne à toutes les étapes de l'achat et dans tous vos projets immobiliers.
Mentions légales
Terrain proposé par un partenaire foncier selon disponibilités et autorisation de publicité au prix de 66 595 €. Hors droit d'enregistrement et frais de notaire. Terrain + Maison proposés au prix de 288 700 € (Hors branchements et raccordements, papiers peints, peintures, revêtement de sol dans les chambres. Tarif modifiable sans préavis). Etiquette énergie : A. Différents modèles disponibles pour ce terrain. Assurances et garanties du constructeur (RC professionnelle, décennale, dommage ouvrage, garantie de remboursement de l'acompte, livraison à prix et délai convenu) : https://www.maisons-bruno-petit.com/mentions-legales/.Agence Bruno Petit GHPA de Juillan (65290)
- Téléphone :
- 05 62 32 91 45
- Adressse :
- 9 route de Lourdes
65290 Juillan, France
