Maison neuve à
Jumelles
(27220) Référence :
ED2412984_1
Prix du projet : Maison avec Terrain
prix 205 959 €
- 4 pièces
- 2 chambres
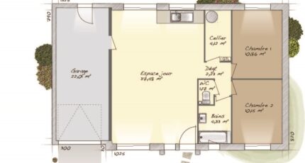
- Surface maison 70 m2
A construire sur la commune de Jumelles, une jolie maison de 4 pièces et 70 m² habitable.
PROCHE D'ÉVREUX.
Nous vous proposons ce projet maison 70 m² sur un terrain de 565 m² situé sur la commune de Jumelles (27220).
Conçue de plain-pied, elle dispose de deux chambres, d'une cuisine et d'une salle de bains.
A 5 min de Saint André avec toutes les commodités, commerces, écoles maternelle et collège, ce terrain est proche des grands axes comme la N154 et N13.
Le marché Place Gambetta a lieu chaque vendredi matin.
Ce projet maison + terrain est proposée à l'achat pour 205 959 €.
Contactez notre agence Maisons Balency Gravigny, pour plus de renseignements.
Notre conseillère commerciale Élodie DUPRÉ (07-43-61-26-52) sera ravie de vous répondre.
Donnez vie à vos projets immobiliers avec Maisons Balency Gravigny.
Annonce proposée par un Agent Commercial Partenaire.
Mentions légales
Terrain proposé par un partenaire foncier selon disponibilités et autorisation de publicité au prix de 49 900 €. Hors droit d'enregistrement et frais de notaire. Terrain + Maison proposés au prix de 205 959 € (Hors branchements et raccordements, papiers peints, peintures, revêtement de sol dans les chambres. Tarif modifiable sans préavis). Etiquette énergie : A. Différents modèles disponibles pour ce terrain. Assurances et garanties du constructeur (RC professionnelle, décennale, dommage ouvrage, garantie de remboursement de l'acompte, livraison à prix et délai convenu) : https://www.maisons-balency.fr/informations-legales/. HEXAOM Services est enregistré auprès de l'ORIAS en tant que Courtier en financement, Niveau 1, sous le numéro 14001345.Agence Maisons Balency de Gravigny (27930)
- Téléphone :
- 02 32 51 49 29
- Adressse :
- 173ter Av Aristide Briand
27930 Gravigny, France