Maison neuve à
La Bonneville-sur-Iton (27190) Référence : OS2309762_2

Prix du projet : Maison avec Terrain

prix 185 000 €

  • 4 pièces
  • 2 chambres
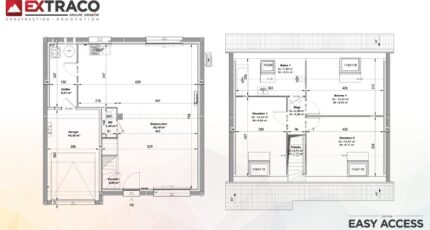
  • Surface maison 81 m2

VENTE : maison de 4 pièces (81 m²) à La Bonneville-sur-Iton
IDÉALEMENT SITUÉE - MAISON 4 PIÈCES NEUVE
En vente : à deux pas d'Évreux, idéalement située dans La Bonneville-sur-Iton (27190), nous vous proposons cette maison de 4 pièces de 81 m² et de 900 m² de terrain. Son intérieur propose deux chambres, une cuisine et une salle de bains.
Cette maison compte 2 niveaux. Elle est neuve.
La maison est située dans un secteur convoité. L'École Primaire la Forge est implantée à moins de 10 minutes à pied. Côté transports, on trouve la gare La Bonneville-sur-Iton à quelques pas de la maison. On trouve un accès à la nationale N13 à 7 km. Il y a une bibliothèque, deux tennis, deux boulangeries, un supermarché et un bureau de poste à quelques minutes à peine.
Elle est proposée à l'achat pour 185 000 €.
N'hésitez pas à prendre contact avec Oumayma SONMEZ (06-68-92-00-86) pour plus d'informations sur la maison ou sur les démarches à suivre. Donnez vie à vos projets immobiliers avec Les Maisons Extraco Gravigny.

Mentions légales

Terrain proposé par un partenaire foncier selon disponibilités et autorisation de publicité au prix de 40 000 €. Hors droit d'enregistrement et frais de notaire. Maison proposée, avec un contrat de construction de maison individuelle, dans le cadre de la loi du 19/12/1990, au prix de 145 000 € (Hors branchements et raccordements, papiers peints, peintures, revêtement de sol dans les chambres, qui sont chiffrés dans les travaux qui restent à charge du client. Tarif modifiable sans préavis). Étiquette énergie : A. Différents modèles disponibles pour ce terrain. Assurances et garanties du constructeur comprises (RC professionnelle, décennale, dommage ouvrage).