Maison neuve à
La Brède
(33650) Référence :
DC2401876_1
Prix du projet : Maison avec Terrain
prix 353 560 €
- 4 pièces
- 4 chambres
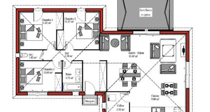
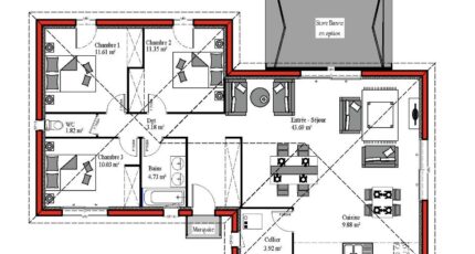
- Surface maison 100 m2
VENTE : maison T4 (100 m²) à La Brède
IDÉALEMENT SITUÉE - MAISON 4 PIÈCES NEUVE
En vente : à 54 km de l'océan Atlantique et à 22 km de Bordeaux, nous sommes heureux de vous proposer cette maison de 4 pièces de plain-pied de 100 m² idéalement située dans La Brède (33650). Son intérieur est composé de quatre chambres, d'une cuisine et de deux salles de bains.
Le terrain du bien est de 1 379 m².
La maison est neuve.
Cette maison se situe dans un secteur recherché. On trouve le Collège Montesquieu, l'École Élementaire Jean Cazauvieilh et l'École Maternelle Lou Baradey à moins de 10 minutes à pied et une crèche. Côté transports en commun, il y a cinq gares à moins de 10 minutes en voiture. L'autoroute A62 est accessible à 3 km. On trouve une bibliothèque, des commerces, quatre boulangeries, un supermarché, deux épiceries et deux boucheries-charcuteries à quelques minutes.
Son prix de vente est de 353 560 €.
N'hésitez pas à prendre contact avec notre agence (CAZAUBON David : O6-11-78-42-56) pour obtenir de plus amples informations sur la maison ou sur les démarches à suivre. Donnez vie à vos projets immobiliers avec Batisoft Bordeaux.
Mentions légales
Idée de réalisation en modèle prêt à décorer sur l’un de nos terrains partenaires, sous réserve de disponibilités. Voir détails en agence.Agence Batisoft de Bordeaux (33000)
- Téléphone :
- 05 35 37 13 70
- Adressse :
- Village Homexpo - Parc des expositions
33000 Bordeaux, France
