Maison neuve à
La Bretonnière-la-Claye
(85320) Référence :
JG2453533_2
Prix du projet : Maison avec Terrain
prix 348 000 €
- 6 pièces
- 5 chambres
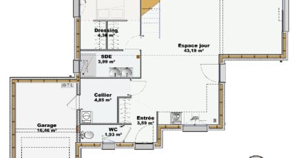
- Surface maison 114 m2
Maison neuve 6 pièces (114 m²) - Construction ossature bois - La Bretonnière
À vendre : située dans un environnement calme et recherché à La Bretonnière, découvrez cette maison neuve à ossature bois de 114 m² avec garage, implantée sur un terrain viabilisé de 1 098 m².
Idéalement située, la propriété se trouve à 25 minutes de La Roche-sur-Yon et à seulement 10 minutes de Luçon, offrant un accès rapide aux commerces, services et à la gare.
La maison, répartie sur deux niveaux, comprend :
5 chambres
une cuisine
2 salles de bains
un garage
un bel espace de vie lumineux
Les avantages d'une maison à ossature bois
La construction ossature bois présente de nombreux atouts :
Excellente performance énergétique grâce à une isolation naturelle très efficace
Construction plus rapide qu'une maison traditionnelle
Matériau écologique et renouvelable, avec une empreinte carbone réduite
Confort thermique et acoustique élevé été comme hiver
Grande liberté architecturale et esthétique moderne
Environnement et commodités
Le secteur est apprécié pour sa qualité de vie. Vous trouverez à proximité écoles, commerces, équipements sportifs, piscines et services, accessibles rapidement en voiture.
Prix de vente : 348 000 €
Pour plus d'informations sur cette maison et votre projet de construction :
LMP CONSTRUCTION 24 RUE NATIONALE 85750 ANGLES
Annonce proposée par un Agent Commercial Partenaire.
Mentions légales
Terrain proposé par un partenaire foncier selon disponibilités et autorisation de publicité au prix de 49 410 €. Hors droit d'enregistrement et frais de notaire. Terrain + Maison proposés au prix de 348 000 € (Hors branchements et raccordements, papiers peints, peintures, revêtement de sol dans les chambres. Tarif modifiable sans préavis). Etiquette énergie : A. Différents modèles disponibles pour ce terrain. Assurances et garanties du constructeur (RC professionnelle, décennale, dommage ouvrage, garantie de remboursement de l'acompte, livraison à prix et délai convenu) : https://www.lmp-constructeur.com/mentions-legales/.Agence Logis du Marais Poitevin de Angles (85750)
- Téléphone :
- 02 51 27 43 52
- Adressse :
- 24 rue Nationale
85750 Angles, France
