Maison neuve à
La Brosse-Montceaux
(77940) Référence :
AD2318413_2
Prix du projet : Maison avec Terrain
prix 225 700 €
- 5 pièces
- 3 chambres
- Surface maison 90 m2
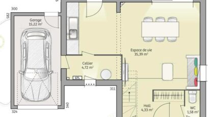
VENTE : maison de 5 pièces (90 m²) à La Brosse-Montceaux
EMPLACEMENT PRIVILÉGIÉ - MAISON 5 PIÈCES NEUVE
À vendre : à proximité de la gare de Montereau (Paris à 60 min par le Transilien R), votre agence Maisons France Confort Nemours est heureuse de vous présenter, bénéficiant d'un emplacement privilégié dans La Brosse-Montceaux (77940), cette maison de 5 pièces de 90 m².
C'est une maison de 2 niveaux. Elle propose trois chambres, une cuisine et une salle de bains. Cette maison est neuve.
Le terrain du bien est de 555 m².
Le bien se situe dans un secteur recherché. Une école élémentaire y est implantée. Côté transports en commun, il y a quatre gares à moins de 10 minutes en voiture. On trouve un tennis, une bibliothèque, un commerce et une épicerie dans les environs.
Il est proposé à l'achat pour 225 700 €.
N'hésitez pas à prendre contact avec Anne DELOHEN (06-30-93-26-67) pour tout renseignement sur la maison.
Annonce proposée par un Agent Commercial Partenaire.
Mentions légales
Terrain proposé par un partenaire foncier selon disponibilités et autorisation de publicité au prix de 49 000 €. Hors droit d'enregistrement et frais de notaire. Maison proposée, avec un contrat de construction de maison individuelle, dans le cadre de la loi du 19/12/1990, au prix de 176 700 € (Hors branchements et raccordements, papiers peints, peintures, revêtement de sol dans les chambres, qui sont chiffrés dans les travaux qui restent à charge du client. Tarif modifiable sans préavis). Étiquette énergie : A. Différents modèles disponibles pour ce terrain. Assurances et garanties du constructeur comprises (RC professionnelle, décennale, dommage ouvrage).Agence Maisons France Confort de Nemours (77140)
- Téléphone :
- 01 64 28 58 32
- Adressse :
- 16 Avenue Carnot
77140 Nemours, France
