Maison neuve à
La Chapelle-Gauthier
(27270) Référence :
DC2495321_1
Prix du projet : Maison avec Terrain
prix 484 075 €
- 4 pièces
- 3 chambres
- Surface maison 120 m2
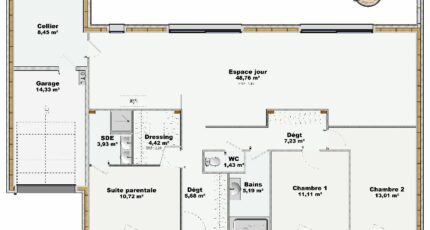
La Chapelle-Gauthier : maison F4 (120 m²) à vendre
MAISON 4 PIÈCES NEUVE
Nous vous proposons cette maison de 4 pièces de plain-pied de 120 m² à La Chapelle-Gauthier (27270).
Elle comporte trois chambres, une cuisine et deux salles de bains. Cette maison est neuve.
Le terrain du bien s'étend sur 1 572 m².
Il y a une école élémentaire dans le quartier. On trouve un accès à l'autoroute A28 à 5 km.
Son prix de vente est de 484 075 €.
Prenez contact avec notre agence (CORDIER David : 06-10-79-38-15) pour toute information sur la maison. Concrétisez vos projets immobiliers avec Maisons France Confort Melun.
Annonce proposée par un Agent Commercial Partenaire.
Mentions légales
Terrain proposé par un partenaire foncier selon disponibilités et autorisation de publicité au prix de 129 500 €. Hors droit d'enregistrement et frais de notaire. Terrain + Maison proposés au prix de 484 075 € (Hors branchements et raccordements, papiers peints, peintures, revêtement de sol dans les chambres. Tarif modifiable sans préavis). Etiquette énergie : A. Différents modèles disponibles pour ce terrain. Assurances et garanties du constructeur (RC professionnelle, décennale, dommage ouvrage, garantie de remboursement de l'acompte, livraison à prix et délai convenu) : https://www.maisons-france-confort.fr/mentions-legales/. HEXAOM Services est enregistré auprès de l'ORIAS en tant que Courtier en financement, Niveau 1, sous le numéro 14001345.Agence Maisons France Confort de Melun (77000)
- Téléphone :
- 01 64 14 43 20
- Adressse :
- 3 route de Nangis
77000 Melun, France