Maison neuve à
La Chapelle-Thouarault
(35590) Référence :
DM2480283_2
Prix du projet : Maison avec Terrain
prix 308 000 €
- 5 pièces
- 4 chambres
- Surface maison 87 m2
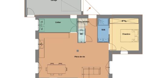
La Chapelle-Thouarault : maison T5 (87 m²) à vendre
IDÉALEMENT SITUÉE - MAISON 5 PIÈCES NEUVE
En vente : à 45 km de la Manche et à 13 km de Rennes, nous sommes heureux de vous présenter cette maison de 5 pièces de 87 m² idéalement située dans La Chapelle-Thouarault (35590).
Cette maison possède 2 niveaux. Elle se divise en quatre chambres, une cuisine et une salle de bains. La maison est neuve.
Le terrain de la propriété est de 352 m².
La maison se trouve dans un secteur convoité. Il y a l'École Primaire Publique Roger Beaulieu à moins de 10 minutes à pied. Côté transports en commun, on trouve trois gares (Breteil, L'Hermitage-Mordelles et Montfort-sur-Meu) à moins de 10 minutes en voiture. Les nationales N12 et N24 sont accessibles à moins de 7 km. Il y a un tennis et une bibliothèque dans les environs.
Elle est à vendre pour la somme de 308 000 €.
Prenez contact avec Dimitri MESAS (tél : 02-99-83-07-20) pour tout renseignement sur la maison ou sur les modalités de vente. Maisons de l'Avenir Pacé vous accompagne à toutes les étapes de votre projet et dans tous vos projets immobiliers.
Mentions légales
Terrain proposé par un partenaire foncier selon disponibilités et autorisation de publicité au prix de 86 500 €. Hors droit d'enregistrement et frais de notaire. Terrain + Maison proposés au prix de 308 000 € (Hors branchements et raccordements, papiers peints, peintures, revêtement de sol dans les chambres. Tarif modifiable sans préavis). Etiquette énergie : A. Différents modèles disponibles pour ce terrain. Assurances et garanties du constructeur (RC professionnelle, décennale, dommage ouvrage, garantie de remboursement de l'acompte, livraison à prix et délai convenu) : https://www.maisonsdelavenir.com/mentions-legales/.Agence Maisons de l'Avenir de Pacé (35740)
- Téléphone :
- 02 99 83 07 20
- Adressse :
- 7, rue d'Armor
35740 Pacé, France
