Maison neuve à
La Châtre (36400) Référence : KG2430544_6

Prix du projet : Maison avec Terrain

prix 321 116 €

  • 5 pièces
  • 4 chambres
  • Surface maison 120 m2

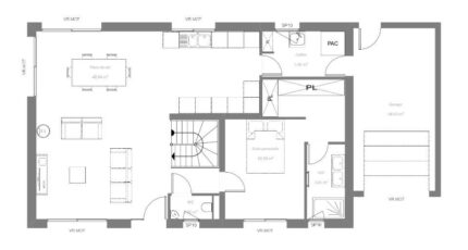
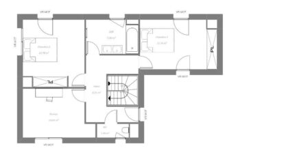
Projet de construction d'une maison de 5 pièces (120 m²) à La Châtre
EMPLACEMENT PRIVILÉGIÉ - MAISON 5 PIÈCES NEUVE
En vente : notre agence Maisons Bruno Petit MJB Châteauroux est ravie de vous proposer cette maison de 5 pièces de 120 m² bénéficiant d'un emplacement privilégié dans La Châtre (36400). Son intérieur comporte quatre chambres, une cuisine et deux salles de bains.
Le terrain du bien est de 2 100 m².
C'est une maison de 2 niveaux. Elle est neuve.
Cette maison est située dans un secteur prisé. Il y a des écoles (de la maternelle au lycée) à moins de 10 minutes à pied, tout comme une crèche. On trouve un bassin de natation, un tennis, une bibliothèque, quatre boulangeries, des commerces, deux supermarchés, un bureau de poste et trois boucheries-charcuteries à proximité.
Elle est à vendre pour la somme de 321 116 €.
Contactez notre constructeur (Kevin GRIMAUD : *6-22-14-89-67) pour toute information sur la maison et sur les démarches à suivre. Maisons Bruno Petit MJB Châteauroux est là pour vous accompagner à toutes les étapes de l'achat.

Mentions légales

Terrain proposé par un partenaire foncier selon disponibilités et autorisation de publicité au prix de 37 316 €. Hors droit d'enregistrement et frais de notaire. Terrain + Maison proposés au prix de 321 116 € (Hors branchements et raccordements, papiers peints, peintures, revêtement de sol dans les chambres. Tarif modifiable sans préavis). Etiquette énergie : A. Différents modèles disponibles pour ce terrain. Assurances et garanties du constructeur (RC professionnelle, décennale, dommage ouvrage, garantie de remboursement de l'acompte, livraison à prix et délai convenu) : https://www.maisons-brunopetit.fr/mentions-legales/.

Contactez l'agence de Châteauroux

02 54 22 66 24

    * Champs obligatoires

    Vos informations sont traitées par HEXAOM et transmises à un conseiller commercial qui vous contactera afin de répondre à votre demande. Les plans et images présentés sur notre site sont la propriété d’HEXAOM et ne peuvent pas être reproduits sans son accord. Pour retrouver notre politique de protection des données personnelles et exercer vos droits conformément à la « loi informatique et liberté » cliquez-ici.