Maison neuve à
La Couture-Boussey
(27750) Référence :
AL1850365_1
Prix du projet : Maison avec Terrain
prix 197 600 €
- 6 pièces
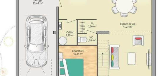
- 4 chambres
- Surface maison 89 m2
VENTE : maison F6 (89 m²) à La Couture-Boussey
MAISON 6 PIÈCES NEUVE - PROCHE ÉVREUX
En vente : venez découvrir cette maison de 6 pièces de 89 m² à La Couture-Boussey (27750). Elle compte quatre chambres, une cuisine et une salle de bains.
Le terrain de la propriété s'étend sur 430 m².
Elle est neuve.
L'École Primaire Aux Quatres Vents et l'École Maternelle René Poilvert se trouvent à moins de 10 minutes à pied. Côté transports, il y a la gare Bueil à moins de 10 minutes en voiture. L'autoroute A13 et les nationales N13, N154 et N12 sont accessibles à moins de 17 km. On trouve un bureau de poste dans les environs.
Cette maison est à vendre pour la somme de 197 600 €. Cette maison est en zone B2 du prêt à taux zéro.
Prenez contact avec notre agence (Maisons France Confort Boos 02 35 80 66 62 / 07 83 57 99 58 / 06 48 48 98 82) pour tout renseignement sur cette maison ou sur les démarches à suivre. Maisons France Confort Boos est là pour vous accompagner dans tous vos projets immobiliers.
*Le prix ne comprend pas les aménagements intérieurs/extérieurs , les frais de notaire, les branchements, les annexes et d'éventuelles modifications apportées par le client.
Annonce proposée par un Agent Commercial Partenaire.
Mentions légales
Terrain proposé par un partenaire foncier selon disponibilités et autorisation de publicité au prix de 55 000 €. Hors droit d'enregistrement et frais de notaire. Maison proposée, avec un contrat de construction de maison individuelle, dans le cadre de la loi du 19/12/1990, au prix de 142 600 € (Hors branchements et raccordements, papiers peints, peintures, revêtement de sol dans les chambres, qui sont chiffrés dans les travaux qui restent à charge du client. Tarif modifiable sans préavis). Étiquette énergie : A. Différents modèles disponibles pour ce terrain. Assurances et garanties du constructeur comprises (RC professionnelle, décennale, dommage ouvrage).Agence Maisons France Confort de Boos (76520)
- Téléphone :
- 02 35 80 66 62
- Adressse :
- 68 rue de la Forge Féret
76520 Boos, France
