Maison neuve à
La Ferté-sous-Jouarre
(77260) Référence :
FA2383489_4
Prix du projet : Maison avec Terrain
prix 248 570 €
- 5 pièces
- 3 chambres
- Surface maison 90 m2
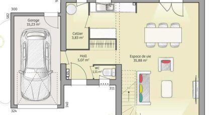
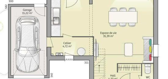
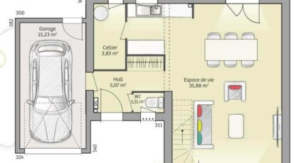
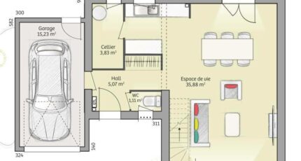
VENTE d'une maison F5 (90 m²) à La Ferté-sous-Jouarre
PROCHE DE MEAUX - MAISON 5 PIÈCES NEUVE
En vente : proche de la gare (Paris à 40 min avec le Transilien P), à La Ferté-sous-Jouarre (77260), nous sommes ravis de vous proposer cette maison de 5 pièces de 90 m².
Il s'agit d'une maison de 2 niveaux. Elle inclut trois chambres, une cuisine et une salle de bains. Cette maison est neuve.
Le terrain du bien s'étend sur 730 m².
On trouve des écoles du primaire et du secondaire à moins de 10 minutes à pied, tout comme une structure d'accueil pour la petite enfance. Côté transports, il y a la gare La Ferté-sous-Jouarre dans un rayon de 1 km. Il y a une bibliothèque, un tennis, des commerces, des boulangeries, trois supermarchés, une boucherie-charcuterie et des épiceries à quelques minutes de la maison. Le marché Boulevard de Turenne anime le quartier.
Son prix de vente est de 248 570 €.
Contactez Franck ALANOE (tél : 06-27-23-96-64) pour obtenir de plus amples informations sur la maison ou sur les démarches à suivre. Maisons France Confort Melun vous accompagne dans tous vos projets immobiliers et à toutes les étapes de l'achat.
Annonce proposée par un Agent Commercial Partenaire.
Mentions légales
Terrain proposé par un partenaire foncier selon disponibilités et autorisation de publicité au prix de 77 000 €. Hors droit d'enregistrement et frais de notaire. Terrain + Maison proposés au prix de 248 570 € (Hors branchements et raccordements, papiers peints, peintures, revêtement de sol dans les chambres. Tarif modifiable sans préavis). Etiquette énergie : A. Différents modèles disponibles pour ce terrain. Assurances et garanties du constructeur (RC professionnelle, décennale, dommage ouvrage, garantie de remboursement de l'acompte, livraison à prix et délai convenu) : https://www.maisons-france-confort.fr/mentions-legales/. HEXAOM Services est enregistré auprès de l'ORIAS en tant que Courtier en financement, Niveau 1, sous le numéro 14001345.Agence Maisons France Confort de Melun (77000)
- Téléphone :
- 01 64 14 43 20
- Adressse :
- 3 route de Nangis
77000 Melun, France