Maison neuve à
Fresnay-sur-Sarthe
(72130) Référence :
ERM2319961_2
Prix du projet : Maison avec Terrain
prix 142 850 €
- 3 pièces
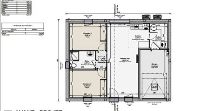
- 2 chambres
- Surface maison 55 m2
Maison de 3 pièces (55 m²) à vendre à 5 minutes de LA HUTTE (72)
IDÉALEMENT SITUÉE - MAISON 3 PIÈCES NEUVE
À 19 km d'Alençon, notre agence Maisons France Confort Saint-Saturnin est ravie de vous proposer en vente, idéalement située à 5 minutes de LA HUTTE (72) (72), cette maison de 3 pièces de plain-pied de 55 m².
Son intérieur comporte deux chambres, une cuisine et une salle de bains. La maison est neuve.
Le terrain du bien est de 1 108 m².
Cette maison est située dans un quartier prisé. Une école primaire y est implantée. Niveau transports en commun, on trouve les gares Vivoin-Beaumont et La Hutte Coulombiers à moins de 5 minutes en voiture. On trouve un accès à l'autoroute A28 à 6 km.
Son prix de vente est de 142 850 €.
Contactez notre constructeur (Elisa RODRIGUES MORAIS : 06-25-94-60-52) pour toute question sur la maison.
Mentions légales
Terrain proposé par un partenaire foncier selon disponibilités et autorisation de publicité au prix de 29 250 €. Hors droit d'enregistrement et frais de notaire. Maison proposée, avec un contrat de construction de maison individuelle, dans le cadre de la loi du 19/12/1990, au prix de 113 600 € (Hors branchements et raccordements, papiers peints, peintures, revêtement de sol dans les chambres, qui sont chiffrés dans les travaux qui restent à charge du client. Tarif modifiable sans préavis). Étiquette énergie : A. Différents modèles disponibles pour ce terrain. Assurances et garanties du constructeur comprises (RC professionnelle, décennale, dommage ouvrage).Agence Maisons France Confort de Alençon (61000)
- Téléphone :
- 02 33 82 93 12
- Adressse :
- 148 Avenue Rhin et Danube
61000 Alençon, France
