Maison neuve à
La Membrolle-sur-Longuenée (49770) Référence : RS2401536_3

Prix du projet : Maison avec Terrain

prix 281 200 €

  • 5 pièces
  • 3 chambres
  • Surface maison 85 m2

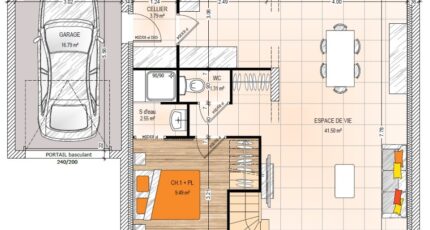
VENTE : maison de 5 pièces (85 m²) à La Membrolle-sur-Longuenée
PROCHE D'ANGERS - MAISON 5 PIÈCES NEUVE
À vendre : localisée à deux pas d'Angers, nous sommes ravis de vous présenter à La Membrolle-sur-Longuenée (49770), cette maison de 5 pièces de 85 m² et de 488 m² de terrain.
Cette maison compte 2 niveaux. Son intérieur inclut trois chambres, une cuisine et deux salles de bains. Cette maison est neuve.
On trouve l'École Primaire Publique le Petit Prince à moins de 10 minutes à pied. On trouve un accès à l'autoroute A11 à 6 km. Il y a une boucherie-charcuterie à proximité de la maison.
Elle est à vendre pour la somme de 281 200 €.
N'hésitez pas à prendre contact avec Roman SALAS (02-41-77-17-17) pour toute question sur le bien, sur les modalités de vente ou sur les démarches à suivre. Concrétisez vos projets immobiliers avec Maisons Bernard Jambert Angers.

Mentions légales

Terrain proposé par un partenaire foncier selon disponibilités et autorisation de publicité au prix de 87 840 €. Hors droit d'enregistrement et frais de notaire. Terrain + Maison proposés au prix de 281 200 € (Hors branchements et raccordements, papiers peints, peintures, revêtement de sol dans les chambres. Tarif modifiable sans préavis). Etiquette énergie : A. Différents modèles disponibles pour ce terrain. Assurances et garanties du constructeur (RC professionnelle, décennale, dommage ouvrage, garantie de remboursement de l'acompte, livraison à prix et délai convenu) : https://www.maisons-bernard-jambert.com/informations-legales/.

Contactez l'agence de Angers

02 41 77 17 17

    * Champs obligatoires

    Vos informations sont traitées par HEXAOM et transmises à un conseiller commercial qui vous contactera afin de répondre à votre demande. Les plans et images présentés sur notre site sont la propriété d’HEXAOM et ne peuvent pas être reproduits sans son accord. Pour retrouver notre politique de protection des données personnelles et exercer vos droits conformément à la « loi informatique et liberté » cliquez-ici.