Maison neuve à
La Membrolle-sur-Longuenée (49770) Référence : RS2412880_3

Prix du projet : Maison avec Terrain

prix 291 500 €

  • 5 pièces
  • 3 chambres
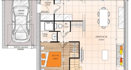
  • Surface maison 85 m2

La Membrolle-sur-Longuenée : maison de 5 pièces (85 m²) en vente
PROCHE D'ANGERS - MAISON 5 PIÈCES NEUVE
À 12 km d'Angers, ayez le coup de coeur pour cette maison de 5 pièces de 85 m² à vendre à La Membrolle-sur-Longuenée (49770). Son intérieur compte trois chambres, une cuisine et deux salles de bains.
Le terrain de la propriété s'étend sur 575 m².
Cette maison possède 2 niveaux. Elle est neuve.
L'École Primaire Publique le Petit Prince est implantée à moins de 10 minutes à pied. L'autoroute A11 est accessible à 6 km. On trouve une boucherie-charcuterie dans les environs.
Elle est à vendre pour la somme de 291 500 €.
N'hésitez pas à prendre contact avec Roman SALAS (tél : 02-41-77-17-17) pour obtenir de plus amples informations sur la maison, sur les modalités de vente et sur les démarches à suivre. Maisons Bernard Jambert Angers est là pour vous accompagner dans tous vos projets immobiliers.

Mentions légales

Terrain proposé par un partenaire foncier selon disponibilités et autorisation de publicité au prix de 103 500 €. Hors droit d'enregistrement et frais de notaire. Terrain + Maison proposés au prix de 291 500 € (Hors branchements et raccordements, papiers peints, peintures, revêtement de sol dans les chambres. Tarif modifiable sans préavis). Etiquette énergie : A. Différents modèles disponibles pour ce terrain. Assurances et garanties du constructeur (RC professionnelle, décennale, dommage ouvrage, garantie de remboursement de l'acompte, livraison à prix et délai convenu) : https://www.maisons-bernard-jambert.com/informations-legales/.

Contactez l'agence de Angers

02 41 77 17 17

    * Champs obligatoires

    Vos informations sont traitées par HEXAOM et transmises à un conseiller commercial qui vous contactera afin de répondre à votre demande. Les plans et images présentés sur notre site sont la propriété d’HEXAOM et ne peuvent pas être reproduits sans son accord. Pour retrouver notre politique de protection des données personnelles et exercer vos droits conformément à la « loi informatique et liberté » cliquez-ici.