Maison neuve à
La Motte
(83920) Référence :
VC2477977_2
Prix du projet : Maison avec Terrain
prix 465 000 €
- 5 pièces
- 4 chambres
- Surface maison 113 m2
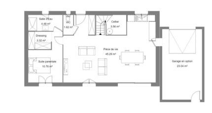
Projet de construction à La Motte - Villa familiale aux prestations soignées
Laissez-vous séduire par cette élégante villa neuve de 113 m² habitables, idéalement implantée sur un terrain plat de 866m², dans un environnement calme tout en étant à proximité des commodités.
Dès l'entrée, vous découvrirez une superbe pièce de vie de 45 m², entièrement climatisée, avec cuisine ouverte. Baigné de lumière grâce à une large baie vitrée donnant sur le jardin, cet espace offre une atmosphère chaleureuse et conviviale, parfaite pour partager des moments en famille.
Côté nuit, la maison propose 4 chambres, dont une suite parentale de plain-pied avec salle d'eau privative et dressing. Une salle de bains familiale ainsi que de nombreux espaces de rangement viennent compléter harmonieusement l'ensemble.
Conçue dans le respect de la norme RE2020, cette villa allie confort de vie, performance énergétique et modernité. Un garage peut également être envisagé en option selon vos besoins.
- Volumes généreux
- Luminosité optimale
- Agencement fonctionnel et moderne
- Environnement recherché
Votre projet clé en main 465 000 euros
(incluant terrain, villa et frais de raccordement)
Pour une étude personnalisée de votre projet, contactez Véronique CHAUVET au O6 28 31 67 99
Avec Maisons France Confort - Agence de Trans-en-Provence
Constructeur de maisons individuelles, leader en France. Entreprise familiale depuis 1919.
Mentions légales
Terrain proposé par un partenaire foncier selon disponibilités et autorisation de publicité au prix de 210 000 €. Hors droit d'enregistrement et frais de notaire. Terrain + Maison proposés au prix de 465 000 € (Hors branchements et raccordements, papiers peints, peintures, revêtement de sol dans les chambres. Tarif modifiable sans préavis). Etiquette énergie : A. Différents modèles disponibles pour ce terrain. Assurances et garanties du constructeur (RC professionnelle, décennale, dommage ouvrage, garantie de remboursement de l'acompte, livraison à prix et délai convenu) : https://www.maisons-france-confort.fr/mentions-legales/. HEXAOM Services est enregistré auprès de l'ORIAS en tant que Courtier en financement, Niveau 1, sous le numéro 14001345.Agence Maisons France Confort de Trans-en-Provence (83720)
- Téléphone :
- 04 94 50 88 00
- Adressse :
- Centre Commercial ARCADIA BAT B
83720 Trans-en-Provence, France
