Maison neuve à
La Neuville-du-Bosc
(27890) Référence :
MB2408696_3
Prix du projet : Maison avec Terrain
prix 242 924 €
- 6 pièces
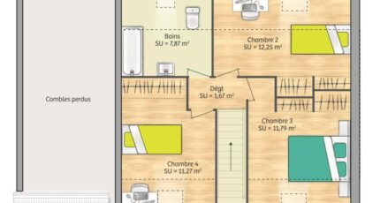
- 4 chambres
- Surface maison 89 m2
Maison de 6 pièces (89 m²) en vente à La Neuville-du-Bosc
EMPLACEMENT PRIVILÉGIÉ - MAISON 6 PIÈCES NEUVE
À vendre : à 49 km de la Manche et à deux pas d'Évreux, venez découvrir cette maison de 6 pièces de 89 m² et de 2 300 m² de terrain bénéficiant d'un emplacement d'exception dans La Neuville-du-Bosc (27890).
Il s'agit d'une maison de 2 niveaux. Son intérieur est composé de quatre chambres, d'une cuisine et d'une salle de bains. La maison est neuve.
La maison est située dans un secteur convoité. On trouve des établissements scolaires de tous niveaux (de la maternelle au lycée) à moins de 10 minutes en voiture, tout comme trois crèches à moins de 10 minutes à pied. Niveau transports, il y a la gare Brionne à moins de 10 minutes en voiture. L'autoroute A28 est accessible à 7 km. On trouve des tennis, deux bibliothèques, un bassin de natation, des boulangeries, des commerces, des supermarchés, une supérette et quatre bureaux de poste à quelques minutes du logement. 2 marchés animent les environs.
Elle est à vendre pour la somme de 242 924 €.
Prenez contact avec notre agence (Mickael BESNARD : 06-15-50-56-87) pour toute information sur le bien. Concrétisez vos projets immobiliers avec Maisons France Confort Vernon.
Annonce proposée par un Agent Commercial Partenaire.
Mentions légales
Terrain proposé par un partenaire foncier selon disponibilités et autorisation de publicité au prix de 68 000 €. Hors droit d'enregistrement et frais de notaire. Terrain + Maison proposés au prix de 242 924 € (Hors branchements et raccordements, papiers peints, peintures, revêtement de sol dans les chambres. Tarif modifiable sans préavis). Etiquette énergie : A. Différents modèles disponibles pour ce terrain. Assurances et garanties du constructeur (RC professionnelle, décennale, dommage ouvrage, garantie de remboursement de l'acompte, livraison à prix et délai convenu) : https://www.maisons-france-confort.fr/mentions-legales/. HEXAOM Services est enregistré auprès de l'ORIAS en tant que Courtier en financement, Niveau 1, sous le numéro 14001345.Agence Maisons France Confort de Vernon (27200)
- Téléphone :
- 02 32 51 45 05
- Adressse :
- 38 rue Carnot
27200 Vernon, France
