Maison neuve à 
  La Plaine-sur-Mer
 (44770)  Référence :
 VC2265100_1 
Prix du projet : Maison avec Terrain
prix 272 600 €
- 3 pièces
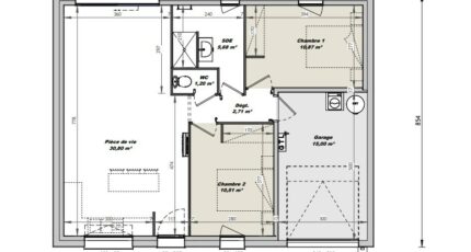
- 2 chambres
- Surface maison 61 m2
La Plaine-sur-Mer : maison de 3 pièces (61 m²) en vente
PROCHE DE SAINT-NAZAIRE - MAISON 3 PIÈCES NEUVE
À vendre : localisée sur la côte atlantique et à quelques kilomètres de Saint-Nazaire, découvrez cette maison de 3 pièces de plain-pied de 61 m² et de 481 m² de terrain à La Plaine-sur-Mer (44770). Son intérieur propose deux chambres, une cuisine et une salle de bains.
Cette maison est neuve.
Il y a l'École Primaire Publique René Cercle et l'École Primaire Privée Notre-Dame à moins de 10 minutes . Niveau transports en commun, on trouve la gare Pornic à moins de 10 minutes en voiture. Il y a un accès à la nationale N171 à 19 km. Il y a un tennis, une bibliothèque, deux boulangeries, trois commerces, un supermarché, un bureau de poste et une boucherie-charcuterie dans les environs.
Son prix de vente est de 272 600 €.
N'hésitez pas à prendre contact avec notre agence (Vincent COUCHAUX : 06-74-86-07-98) pour tout renseignement sur la maison ou sur les modalités de vente. Maisons Tradilignes Pornic vous accompagne à toutes les étapes de votre projet et dans tous vos projets immobiliers.
Mentions légales
Terrain proposé par un partenaire foncier selon disponibilités et autorisation de publicité au prix de 142 065 €. Hors droit d'enregistrement et frais de notaire. Maison proposée, avec un contrat de construction de maison individuelle, dans le cadre de la loi du 19/12/1990, au prix de 130 535 € (Hors branchements et raccordements, papiers peints, peintures, revêtement de sol dans les chambres, qui sont chiffrés dans les travaux qui restent à charge du client. Tarif modifiable sans préavis). Étiquette énergie : A. Différents modèles disponibles pour ce terrain. Assurances et garanties du constructeur comprises (RC professionnelle, décennale, dommage ouvrage).Agence Maisons Tradilignes de Pornic (44210)
- Téléphone :
- 02 40 82 59 91
- Adressse :
-  46 rue du Général de Gaulle
 44210 Pornic, France
 
  
  
  
  
  
  
  
  
  
 